рефераты
Главная

Рефераты по международному публичному праву

Рефераты по международному частному праву

Рефераты по международным отношениям

Рефераты по культуре и искусству

Рефераты по менеджменту

Рефераты по металлургии

Рефераты по муниципальному праву

Рефераты по налогообложению

Рефераты по оккультизму и уфологии

Рефераты по педагогике

Рефераты по политологии

Рефераты по праву

Биографии

Рефераты по предпринимательству

Рефераты по психологии

Рефераты по радиоэлектронике

Рефераты по риторике

Рефераты по социологии

Рефераты по статистике

Рефераты по страхованию

Рефераты по строительству

Рефераты по таможенной системе

Сочинения по литературе и русскому языку

Рефераты по теории государства и права

Рефераты по теории организации

Рефераты по теплотехнике

Рефераты по технологии

Рефераты по товароведению

Рефераты по транспорту

Рефераты по трудовому праву

Рефераты по туризму

Рефераты по уголовному праву и процессу

Рефераты по управлению

Учебное пособие: Проектирование лестниц

Учебное пособие: Проектирование лестниц


Проектирование лестниц


Классификация лестниц и требования к ним

Лестницы служат для сообщения между этажами или разными уровнями.

По назначению лестницы делятся на:

1.  Основные - служащие для постоянного пользования и эвакуации;

2.  Вспомогательные - для служебного сообщения между этажами;

3.  Аварийные - наружные эвакуационные лестницы;

4.  Пожарные - устраиваются, открыто, вне здания.

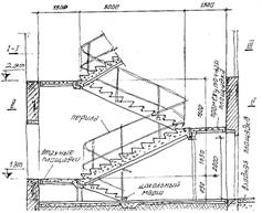
Конструкция лестницы состоит из чередующихся площадок и маршей.

Марш состоит из ряда ступеней, поддерживающих их наклонных балок и ограждения.

Балки называют косоурами (если ступени опираются на них сверху) и тетивами (если ступени примыкают к ним сбоку).

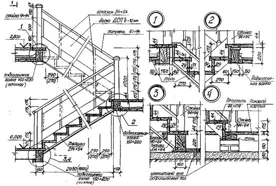
Несущие элементы марша опираются на несущие элементы площадки - площадочные балки (рис. 100, 101, 102)

Лестничные площадки бывают этажные (расположенные на уровне этажей) и промежуточные.

Верхняя и нижняя ступени марша, служащие переходом к площадкам называются фризовыми.

В зависимости от числа маршей в пределах высоты одного этажа лестницы бывают одномаршевые, двумаршевые, трехмаршевые. Чаще всего применяются двумаршевые. При трехмаршевой лестнице между маршами удобно располагать шахты лифтов.

В жилых зданиях до 5-ти этажей лестница, ведущая от уровня верхнего этажа на чердак, устраивается в виде стальной стремянки. Свыше 5-ти этажей лестницы, ведущие на чердак, являются продолжением основной.

В зависимости от применения материала лестницы бывают:

1. деревянные;

2. из сборных железобетонных (или каменных) ступеней по металлическим несущим конструкциям;

3. цельно железобетонные - сборные и монолитные;

4. стальные.

Деревянные лестницы применяются в каменных зданиях III и IV класса, высотой до 2-х этажей.

Лестницы с металлическими несущими конструкциями и монолитные железобетонные лестницы в целях экономии металла и индустриализации разрешается применять только в общественных зданиях при сложной форме лестниц (рис. 105).

Сборные железобетонные лестницы применяются в массовом строительстве типовых жилых и общественных зданий.

Стальными делают лестницы аварийные и пожарные (рис. 100, 101, 102, 107, 108,109)

лестница конструкция безопасность прочность

Конструкции лестниц

1. Лестницы на стальных балках:

Выполняют с железобетонными ступенями. Ступени из природного камня, например гранита, применяют в основном для наружных лестниц и для лестниц с особо интенсивным движением (рис. 105, 106).

2. Железобетонные лестницы:

Монолитные железобетонные лестницы: эти лестницы очень прочны, но требуют сложной опалубки и задерживают ход строительства. Поэтому их применяют очень редко.

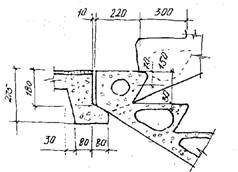
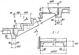
Сборная железобетонная: лестница из мелкоразмерных элементов: связь достигается сваркой закладных элементов. Ступени укладываются по косоурам на цементном растворе. Ограждения из стальных стоек (заделываемых в ступени) и наклонных решеток.

Железобетонные лестницы из крупноразмерных элементов получили очень широкое распространение. Элементы (марши и площадки, изготовленные на заводе) лестниц краном устанавливаются на место и скрепляются сваркой закладных деталей.. Такие лестницы изготавливаются или с фактурными поверхностями ступеней и площадок или с накладными проступями (рис. 106, 107, 109).

В лестничных клетках не должно быть складских или иного назначения помещений, выходов из шахт грузоподъемников, промышленных газопроводов и трубопроводов с горючими жидкостями.

Для достаточного прохода в лестничной клетке поднимают уровень пола 1го этажа над уровнем пола входной площадки на 0.5-1.0м (рис.101).

Основные требования, предъявляемые к лестницам

Это безопасность движения и удобство ходьбы по ним. С этой целью, кроме обеспечения прочности и жесткости конструкций, при проектировании лестниц необходимо соблюдать ряд правил.

Уклон марша должен приниматься согласно СНиП (в зависимости от назначения и этажности здания) для основных лестниц 1:2 - 1:1.75, а для вспомогательных до 1:1,25; все ступени в марше должны иметь одинаковые, удобные для ходьбы размеры. А марши по возможности должны быть унифицированы. Число ступеней в марше назначается не более 18, но и не менее трех. Обычно марши имеют от 10 до 13 ступеней.

Марши и площадки ограждаются перилами высотой 0.9м; высота проходов под площадками и маршами делается не менее 2м; лестничные клетки должны иметь естественное освещение.

Ширина лестничных маршей принимается по противопожарным требованиям из расчета не менее 0.6м на 100 человек. Там, где есть лифты, требования иные.

Ширина площадки лестничной клетки должна быть не менее ширины марша.

Для жилых этажей в 10 и более этажей должно быть не менее двух эвакуационных путей или необходимо устройство так называемых «незадымляемых лестниц».

Незадымляемость лестничной клетки обеспечивается созданием при входе в нее открытой воздушной зоны в виде балкона или лоджии, что предотвращает распространение дыма в другие этажи зданий. При этом вместо двух обычных лестниц может быть запроектирована одна незадымляемая (рис. 111).

Другой прием: создание искусственного подпора воздуха исключающего проникновение дыма в лестничную клетку; выносимые лестницы, сообщаются через холодный шлюз.

В лестничной клетке наружные входные двери открываются в сторону выхода из здания. Входные двери в квартиры с лестницы должны открываться внутрь.

Ступени лестниц подразделяются на рядовые и фризовые, примыкающие к площадкам; верхняя и нижняя фризовые ступени.

Горизонтальная плоскость называется - проступь, вертикальная -подступенок. Высота ступени 130-200мм, ширина не менее 250мм.

Прочность и надежность сопряжений сборных железобетонных конструкций лестниц достигается сваркой закладных деталей, которые располагают в соединяемых элементах соответственно один против другого.

Внутриквартирные лестницы устраиваются деревянными. Отдельные ступени укладываются на косоуры или врезаются в тетивы, начиная с нижней фризовой и кончая верхней фризовой. Ограждения лестниц выполняют также деревянными.

Во внутриквартирных лестницах допускается устройство забежных ступеней и винтовых лестниц.

Пожарные и аварийные лестницы в общественных и жилых зданиях выносят наружу.

Пожарные лестницы на крышу делают прямыми и не доводят до уровня земли на 2,5 м. Ширина пожарных лестниц принимается не менее 0,6м.

Аварийные лестницы конструктивно аналогичны пожарным, но к ним предъявляют дополнительные требования: уклон лестниц должен быть не более 45° ширина принимается не менее 0,7м. На каждом этаже предусматриваются специальные площадки.

Пандусы. Для связи между различными уровнями и этажами в общественных зданиях наряду с лестницами используют пандусы - плоские наклонные конструкции без ступеней. Им придают уклон от 5 до 12°(1/12 - 1/5). При больших уклонах пользоваться пандусом трудно из-за скольжения. Пандусы с малым уклоном вызывают большие потери полезной площади здания. Чистый пол пандусов должен иметь нескользкую поверхность (асфальтовый, цементный, из релина, мастичный и др.).

Лифты и эскалаторы. Они относятся к механическим устройствам для организации сообщения между этажами. Наибольшее распространение получили лифты периодического (прерывистого) действия. В зависимости от требований, используют кабины непроходные с одним входом в лифт или кабины проходные с расположением входов с противоположенных шахты лифта.

Машинное помещений лифта может находиться над шахтой (верхнее расположение) или под ней (нижнее расположение).

Лифтовая шахта не должна примыкать непосредственно к жилим помещениям; располагать машинное отделение лифтов непосредственно над и под жилими помещениями, а также смежными с ними.

В настоящее время получили распространение, так называемые, наружные лифты подвесной конструкции, которые применяют в жилых зданиях старой постройки, в общественных зданиях различного назначения.

Лифты, небольшой скорости, непрерывно действующие (не останавливающиеся) называются патерностеры.

Эскалатором называют движущуюся лестницу, относящуюся; к классу подъемных устройств непрерывного действия. В зданиях часто применяют многомаршевые схемы размещения эскалаторов.

Одномаршевый эскалатор состоит из натянутых цепей-ступеней, опирающихся на несущие наклонные металлические фермы. Тяговые цепи и ступени, каждая из которых движется на четырех бегунках, образуют эскалаторное полотно. Верхняя ветвь полотна является рабочей, а нижняя - холостой.

В конструкцию входят движущиеся поручни, высотой 90см. Наиболее распространенными являются эскалаторы с шириной полотна 0,6 до 1,0м. Угол наклона полотна может быть произвольным, но не превышающим 30 градусов. Эскалаторы в здании должны дублироваться обычными лестницами для пожарной безопасности.

Поперечный разрез

Двухмаршевая лестница из сборных железобетонных маршей и площадок (план 1–го этажа)


Сборные железобетонные лестничные марши со складчатыми ступенями

Сборные железобетонные лестничные марши с пустотелыми ступенями


МЕЖДУКВАРТИРНЫЕ ЛЕСТНИЦЫОДНОМАРШЕВАЯ ДВУХМАРШЕВЫЕ

а – размер проступи

в – размер подступенка

Примечания:

1. внутриквартирные лестницы должны удовлетворять формуле 2b+а=60-64 см; величина 60-64см – размер среднего шага человека.

2. Рекомендуемый уклон лестницы – 1:1,5, что соответствует отношению b:а=16,6:25 (допускается максимальный уклон 1:1,25 см).

3. В скобках даны размеры для уклона 1:1,25.

4. Минимальная ширина марша равна 90 см.

5. высота проходов под лестничным маршем до низа выступающих конструкций не менее 200 см.

ВНУТРИКВАРТИРНЫЕ

БЕЗ ЗАБЕЖНЫХ СТУПЕНЕК

С ЗАБЕЖНЫМИ СТУПЕНЯМИ


ДЕРЕВЯННАЯ ЛЕСТНИЦА

С ЗАБЕЖНЫМИ СТУПЕНЯМИ

ДЕРЕВЯННАЯ ДВУХМАРШЕВАЯ ЛЕСТНИЦА

ДВУХМАРШЕВАЯ ДЕРЕВЯННАЯ ЛЕСТНИЦА


С ЖЕЛЕЗОБЕТОННЫМИ СТУПЕНЯМИ

И ЖЕЛЕЗОБЕТОННЫВМИ КОСОУРАМИ

ВКЛАДЫШ ВЕРХНЕЙ ПЛОЩАДКИ СВ 12 - 2 СТУПЕНЬ ВЕРХНЯЯ ФРИЗОВАЯ СВ - 11

ИЗ ЖЕЛЕЗОБЕТОННЫХ ПРОСТУПЕЙ

И КОСОУРОВ

ДОБОРНАЯ ПЛИТА ВЕРХНЕЙ ПЛОЩАДКИ ПД-11

СТУПЕНЬ ОСНОВНАЯ СО-11 СТУПЕНЬ НИЖНЯЯ ФРИЗОВАЯ СН-11

КОСОУР

ПОДКОСОУРНАЯ БАЛКА К 26

С ЖЕЛЕЗОБЕТОННЫМИ СТУПЕНЯМИ И СТАЛЬНЫМИ КОСОУРАМИ


ЛЕСТНИЦЫ ИЗ МЕЛКОРАЗМЕРНЫХ ЭЛЕМЕНТОВ ДЛЯ МАЛОЭТАЖНЫХ ЗДАНИЙ

С ЖЕЛЕЗОБЕТОННЫМИ СТУПЕНЯМИ И СТАЛЬНЫМИ КОСОУРАМИ

ВЕРХНЯЯ ФРИЗОВАЯ СТУПЕНЬ
С ВЫПУСКОМ ДЛЯ ПРОМЕЖУТОЧНЫХ ПЛОЩАДОК С ЧЕТВЕРТЬЮ И ВКЛАДЫШЕМ ДЛЯ ВЕРХНЕЙ ПЛОЩАДКИ

СТУПЕНИ:
НИЖНЯЯ ФРИЗОВАЯ РЯДОВАЯ ЦОКОЛЬНАЯ ПОДВАЛЬНАЯ

КОСОУР И ПОДКОСОУРНАЯ БАЛКА

ИЗ ЖЕЛЕЗОБЕТОННЫХ ПРОСТУПЕЙ И КОСОУРОВ

ИЗ ДЕРЕВЯННЫХ МАРШЕЙ НА ТЕТИВАХ

 


ЛЕСТНИЧНЫЕ МАРШИ И ПЛОЩАДКИ ДЛЯ ЭТАЖЕЙ ВЫСОТОЙ 2,8 м.

РЕБРИСТОЙ КОНСТРУКЦИИ МАРШИ U-ОБРАЗНОГО СЕЧЕНИ, ПОЛНОТЕЛЫЕ, БЕЗ ФРИЗОВЫХ СТУПЕНЕЙ


СЛУЖЕБНЫЕ СТАЛЬНЫЕ ЛЕСТНИЦЫ (СЕРИЯ 2.150-1) И ВСПОМОГАТЕЛЬНЫЕ УСТРОЙСТВА

НА ЧЕРДАК

ОТКИДНАЯ СТРЕМЯНКА, ПОДВЕШЕННАЯ К ОБРАМЛЕНИЮ ЛЮКА

В ПОДПОЛЬЕ

НАКЛОННАЯ СТРЕМЯНКА

ВЕРТИКАЛЬНАЯ СТРЕМЯНКА С ПОРУЧНЕМ

ОТКИДНАЯ СТРЕМЯНКА НА СТОЙКАХ

С КРЫШИ ЗДАНИЯ НА КРЫШУ МАШИННОГО ПОМЕЩЕНИЯ ВЕРТИКАЛЬНАЯ СТРЕМЯНКА С ПОРУЧНЕМ

НАКЛОННАЯ СТРЕМЯНКА С ОГРАЖДЕНИЕМ

СТАЛЬНАКЯ РЕШЕТКА ДЛЯ ЧИСТКИ ОБУВИ


ЛЕСТНИЦЫ

С П – ОБРАЗНЫМИ МАРШАМИ

С П – ОБРАЗНЫМИ СКЛАДЧАТЫМИ МАРШАМИ
С Н – ОБРАЗНЫМИ СКЛАДЧАТЫМИ МАРШАМИ
С Т – ОБРАЗНЫМИ СКЛАДЧАТЫМИ МАРШАМИ

МАРШИ ПЛИТНОЙ КОНСТРУКЦИИ

1-валик; 2-хвост; 3 – постель;

4 - замок


ЛЕСТНИЧНО-ЛИФТОВАЯ ПРЯМАЯ БЛОК-СВЯЗКА 9-ТИ ЭТАЖНОГО ПАНЕЛЬНОГО ЖИЛОГО ДОМА


ЛЕСТНИЧНО-ЛИФТОВАЯ ПРЯМАЯ БЛОК-СВЯЗКА 12-16 - ЭТАЖНОГО ПАНЕЛЬНОГО ЖИЛОГО ДОМА (ПО СЕРИИ 137)


© 2012 Рефераты, доклады и дипломные работы, курсовые работы бесплатно.