рефераты
Главная

Рефераты по международному публичному праву

Рефераты по международному частному праву

Рефераты по международным отношениям

Рефераты по культуре и искусству

Рефераты по менеджменту

Рефераты по металлургии

Рефераты по муниципальному праву

Рефераты по налогообложению

Рефераты по оккультизму и уфологии

Рефераты по педагогике

Рефераты по политологии

Рефераты по праву

Биографии

Рефераты по предпринимательству

Рефераты по психологии

Рефераты по радиоэлектронике

Рефераты по риторике

Рефераты по социологии

Рефераты по статистике

Рефераты по страхованию

Рефераты по строительству

Рефераты по таможенной системе

Сочинения по литературе и русскому языку

Рефераты по теории государства и права

Рефераты по теории организации

Рефераты по теплотехнике

Рефераты по технологии

Рефераты по товароведению

Рефераты по транспорту

Рефераты по трудовому праву

Рефераты по туризму

Рефераты по уголовному праву и процессу

Рефераты по управлению

Реферат: Расчет конструкций здания мельницы

Реферат: Расчет конструкций здания мельницы

РЕФЕРАТ

Пояснительная записка    с., 2 листа формата А2 и 1 лист формата А1 графического материала.

Расчет конструкций здания мельницы  агрофирмы имени Цюрупа.

Объектом курсового проектирования является цех переработки зерна на агрофирмы имени Цюрупа

Цель работы – расчет и разработка основных строительных конструкций стен, кровли, пола, фундамента здания, а также системы отопления и канализации.

В проекте рассчитаны толщина стен и утеплителя кровли, выбраны окна и двери, выполнен расчет системы отопления, водоснабжения и канализации.

ВЕДЕНИЕ

Агрофирмы имени Цюрупа расположена по адресу: 450501 Республика Башкортостан, Уфимский район, с. Булгаково.

Руководители предприятия агрофирмы имени Цюрупа:

-    Генеральный директор – Незнанов

-    Главный инженер – Жуков

Рабочим мельницы является типовой проект мельницы Фермер - 4. Мельница еще не эксплуатируется

1 ТЕХНИКО-ЭКОНОМИЧЕСКОЕ ОБОСНОВАНИЕ ПРОЕКТИРОВАНИЯ И СТРОИТЕЛЬСТВА ПЕРЕРАБАТЫВАЮЩЕГО ПРЕДПРИЯТИЯ

Необходимо построить предприятие, обеспечивающее замкнутый цикл производства сельскохозяйственной продукции. Предприятие обеспечивается внутрихозяйственным сырьем. Мощность предприятия должна составлять до 1200 кг/час.

2 ИСХОДНЫЕ ДАННЫЕ ДЛЯ ПРОЕКТИРОВАНИЯ

Мощность мельницы составляет 1200 кг/час

Ассортимент и заданные объемы производства приведены в таблице 2.1

Таблица  2.1 Технические показатели

Наименование продукта Производственная мощность %
Мука высшего сорта 35
Мука первого сорта 25
Мука второго сорта 10

3 ОПИСАНИЕ ТЕХНОЛОГИЧЕСКОГО ПРОЦЕССА

При сортовом помоле зерна мука должна быть сформирована только за счет измельченного эндосперма, его крахмалистой части. Оболочки, алейро­новый слой и зародыш направляются в отруби, причем зародыш желательно выделять в виде самостоятельного продукта.

В подготовительном отделении мельзавода поступающее зерно подвергают сепарированию для удаления из его массы различных посторон­них примесей. Их начальное содержание ограниченно следующими нор­мами: сорной примеси не более 2%, зерновой – не более 5%,

После очистки, на выходе из подготовительного отделения их остаточное содержание не должно превышать: сорной 0,3%, зерновой - 3,0%.

На оболочках зерна могут присутствовать различные загрязнения,

поэтому проводят специальную операцию по очистке поверхности зерна, в некоторых случаях осуществляют легкое шелушение зерна, частично удаляя его плодовые оболочки.

Особое значение имеет направленное изменение исходных структурно-механических и технологических свойств зерна - это достигается путем проведения процесса гидротермической обработки (ГТО). Помимо того, для стабилизации свойств зерна проводят формирование помольных партий, причем преследуют цель обеспечить в течение возможно более длительного периода постоянные значения стекловидности, содержания клейковины и других показателей свойств зерна.

Завершаются операции в подготовительном отделении увлажнением оболочек зерна для придания им повышенной сопротивляемости измельчению; это обеспечивает формирование при помоле крупных отрубей которые легко отделяются от частиц муки при сортировании продуктов измельчения.

В размольном отделении мельзавода осуществляются операции измельчения и сортирования продуктов измельчения по крупности и добротности. Эти операции повторяются многократно, что диктует задача избирательного измельчения крахмалистой части эндосперма.

Эффективность этого процесса повышается при направлении на каж

дую систему измельчения однородных по размерам и добротности про-

дуктов, что достигается их фракционированием, сортированием на ряд

промежуточных продуктов на рассевах и ситовеечных машинах.

Если стоит задача получения нескольких сортов муки, то проводится операция их формирования; тот или иной сорт муки получается

путем объединения и смешивания ряда потоков муки с отдельных тех

нологических систем.

4 ВЫБОР ТЕХНОЛОГИЧЕСКОГО ОБОРУДОВАНИЯ

4.1 Агрегат очистки и подготовки зерна к помолу (ПТМА – 1 ):

       - бункер приемный

       - нория приемная

       - рассев-сепаратор

       - камнеотборник

       - нория №2; нория №3

       - увлажняющая машина – 2 шт.

       - бункера № 3,4 (отволаживание) – 2 шт.

       - блок очистки воздуха – 3 шт.

       - вентилятор – 3 шт.

       - машина обоечная – 4 шт.

       - аспирационная колонка – 2 шт.

       - машина щеточная – 2 шт.

4.2 Мельница (Фермер – 4)

       - первый мельничный модуль

       - второй мельничный модуль

       -третий мельничный модуль

       - контрольный расе

       - бункер для муки первого и высшего сорта

       - бункер для муки второго сорта и отрубей

       - весы товарные электронные ВТТ-100 – 3 шт.

       - мешкозашивочная машина АН-1000

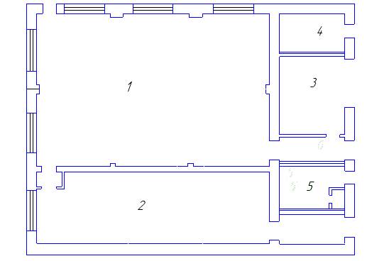
5 ПЛАНИРОВКА ПОМЕЩЕНИЙ

Рисунок 5.1 Схема мельницы

1 – мельничный цех; 2 – склад готовой продукции в таре; 3 – склад зерна бункерный 4 – РП; 5 – приточная камера

6 ТЕПЛОТЕХНИЧЕСКИЙ РАСЧЕТ ОГРАЖДАЮЩИХ КОНСТРУКЦИЙ И КОНСТРУИРОВАНИЕ НАРУЖНИХ СТЕН ПОМЕЩЕНИЯ

Определим сопротивление ограждающей конструкции по формуле:

,                           (6.1)

где n – коэффициент, принимаемый в зависимости от положения наружной поверхности  ограждающих конструкций по отношению к наружному воз­духу, n = 1 (таблица П 1.2 /1/);

tн – расчетная зимняя температура наружного воздуха, равная средней тем­пературе наиболее холодной пятидневки, обеспеченностью 0,92.

Для РБ tн = -33…-370С;

tв – расчетная температура внутреннего воздуха, принимаемая согласно ГОСТ 12.1.005-76 и нормам проектирования соответствующих зданий и со­оружений. Для категории работ средней тяжести IIа оптимальная темпера­тура tв = 18-200С;

Δtн – нормативный температурный перепад между температурой внутрен­него воздуха и температурой внутренней поверхности ограждающей конст­рукции, Δtн =tвtр; tр – температура точки росы при расчетной температуре и относительной влажности внутреннего воздуха φ = 70%.

Δtн =tвtр = 18 - 9,85=8,150С

Принимаем Δtн = 70С;

αв – коэффициент теплоотдачи внутренней поверхности ограждающих кон­струкций,  αв = 8,7 Вт/(м2·0С) (Таблица П 1.3 /1/).

 (м2·0С)/Вт

Определяем сопротивление теплопередачи ограждающих конструкций

 ,                     (6.2)

где αн – коэффициент теплоотдачи (для зимних условий) наружной поверх­ности ограждающей конструкции, αн = 23 Вт/(м2·0С) (Таблица П 1.4 /1/);

(м2·0С)/Вт

Rк – термическое сопротивление ограждающей конструкции.

Определим градусо-сутки отопительного периода (ГСОП) по формуле

ГСОП = (tв - tот.пер.) zот.пер. ,       (6.3)

где tот.пер. – температура отопительного периода,

zот.пер. – средняя температура, °С, и продолжительность, сут, периода со средней суточной температурой воздуха ниже или равной 80С по СНиП 2.01.01-82, zот.пер. = 214 дней, tот.пер = -6,60С.

ГСОП = (18 – (-6,6))·214 = 5264,4

Значения Rтро определим методом интерполяцией.

 (м2·0С)/Вт

Исходя из полученных данных ГСОП, определим требуемую толщину уте­плителя стены:

В качестве утеплителя принимаем пенополистирол ПСБ-С-40 по

ГОСТ 15588-70 с коэффициентом теплопроводности   = 0,041

Рисунок 6.1 Конструкция стены

1-   кирпичная стена; 2 – строительный картон; 3 – утеплитель; 4 – слой штука­турки

тогда

принимаем стандартную толщину 0,04 м = 40 мм

7 РАСЧЕТ И КОНСТРУИРОВАНИЕ ОКОН И ДВЕРЕЙ

Требуемое сопротивление теплопередачи R0 дверей и ворот должно быть не менее 0,6· R0тр. R0 = 0.6·0,87 = 0,522 (м2·0С)/Вт.

Принимаем двери из дерева тип Г 21-19 (ГОСТ 14624-84).

Требуемое сопротивление теплопередачи для окон определим согласно ГСОП. Значения Rо определим методом интерполяцией.

 (м2·0С)/Вт

Выбираем окна из деревянных профилей с двойным остеклением           ПНД 18-30,2 (ГОСТ 12506-81).

8 РАСЧЕТ И КОНСТРУИРОВАНИЕ ПЕРЕКРЫТИЯ, ПОТОЛКА, КРОВЛИ И ПОЛА

8.1 Подбор состава кровли

Расчет толщины утеплителя кровли.

Определим требуемое сопротивление теплопередачи кровли.

                             (8.1)

Для производственных зданий 0С;

  (м2·0С)/Вт

Требуемое сопротивление теплопередачи для окровли определим согласно ГСОП.Значения Rтро определим методом интерполяцией.

 (м2·0С)/Вт

Подбор состава кровли производим по СНиП II – 26 – 76 «Кровля».

Выбираем тип кровли К – 2,Основной водоизоляционный ковер 4 слоя на би­тумной мастике:

Защитный слой по верху водоизоляционного ковра - Слой гравия на битум­ной мастике

Рисунок 8.1  Конструкция кровли

1 -4 слоя на битумной мастике:

а) гидроизола мароки ГИ-Г,  (ГОСТ 7415-74*)

б) рубероида антисептированного дегтевого марки РМД-350

в) толя гидроизоляционного с покровной пленкой мароки ТГ-350,(ГОСТ 10999-76)

г) толя гидроизоляционного антраценового марки ТАГ-350

2 -Слой гравия на дегтевой  битумной мастике;  3 - пенополистироловая плита 4 - рубероид, наклеенный на горячем битуме расчетные сопротивления паропроницанию кв.м·ч·мм рт.ст/г =10,3;  5 - железобетонные плиты;

8.2 Подбор плит перекрытия

Для подбора плит перекрытия производим сбор нагрузок на 1 м2 покрытия.

Таблица 8.1 Сбор нагрузок на 1 м2

Наименование нагрузки

Нормативная нагрузка Коэффициент надежности Расчетная на­грузка
1 2 3 4 5
1. Слой гравия на битум­ной мастике 18 1,3 23,4
2. 4 слоя рубероида на би­тумной мастике: 9,2 1,2 11,04
1 2 3 4 5
3. пенополистироловая плита 2 1 2
4. рубероид, наклеенный на горячем битуме 1,55 1,2 1,86
5. Снеговая нагрузка 150 1,4 210
Итого: 248,3

По полученной общей нагрузки подбираем марку плиты перекрытия

Выбираем плиту ребристую, предварительно напряженную, размером 1,5 x  6 м, марки 2ПГС6-2Ат IV с расчетной нагрузкой 370 кг/м2. Расчетная на­грузка плиты составляет 165 кг/м2.

8.3 Расчет и конструирование полов

Покрытие пола. Покрытие пола принимаем бетон кл.В22,5 на безискровом заполнителе(щебень или песок исключающий искрообразование) – 25мм. Подстилающий слой – бетон кл.7,5 – 100мм. Основание – уплотненный щеб­нем грунт – 60мм. Стяжка из цементно-песчаного раствора М-150 по уклону, толщиной 20 мм.

9 РАСЧЕТ И КОНСТРУИРОВАНИЕ ФУНДАМЕНТОВ ЗДАНИЯ

9.1 Расчетная глубина сезонного промерзания грунта

 ,                                (9.1)

где dfn – нормативная глубина промерзания, для РБ dfn = 1,8 м;

kh – коэффициент, учитывающий влияние теплового режима сооружения.

kh = 0,6 для мельницы  (пол по грунту).

 м

9.2 Расчет оснований по деформациям

       (9.2)

где  и  

- коэффициенты, условий работы, принимаемые по табл. 3;

k

-

коэффициент, принимаемый равным: k = 1, если прочностные характеристики грунта (j и с) опре­делены непосредственными испытаниями, и k = 1,1, если они приняты по табл. 1-3 рекомендуемого приложения 1;

- коэффициенты, принимаемые по табл. 4;

-

коэффициент, принимаемый равным:

при b < 10 м - =1, при b ³ 10 м - =z0 /b+0,2 (здесь z0=8 м);

b

- ширина подошвы фундамента, м;

-

осредненное расчетное значение удельного веса грунтов, залегающих ниже подошвы фундамента (при наличии подземных вод определяется с  уче­том взвешивающего действия воды), кН/м3 (тс/м3);

- то же, залегающих выше подошвы;

-

расчетное значение удельного сцепления грунта, залегающего непосредственно под подошвой фун­дамента, кПа (тс/м2);

d1

- глубина заложения фундаментов  бесподвальных сооружений от уровня планировки или по формуле

                        (9.3)

где

-

толщина слоя грунта выше подошвы фундамента со сто­роны подвала, hs = 1,5 м;

-

толщина конструкции пола подвала, = 0,22 м;

-

расчетное значение удельного веса конструкции пола под­вала, = 5,2 кН/м3 (тс/м3);

-

глубина подвала – расстояние от уровня планировки до пола подвала, м (для сооружений с подвалом шириной B £ 20 м и глубиной свыше 2 м принимается  = 2 м, при ши­рине подвала B > 20 м -  = 0).

 м

9.3 Расчет ленточного фундамента

Производим сбор нагрузок на 1 погонный метр ленточного фундамента под кирпичную стену мельницы.

Нагрузка от собственного веса кровли, снега, покрытия и перекрытия

 кг/м

Нагрузка от собственного веса кирпичной стены толщиной 0,24 м и высо­той 8,95 м. и утеплителя толщиной   0,04 м   и высотой 8,95 м.

 кг/м

Суммарная нагрузка

 кг/м

 кН/м

Определим ориентировочную ширину фундамента здания по формуле

                 (9.4)

N – расчетное сопротивление грунта основание;

Rср – расчетное сопротивление грунтов, принимаем приближенно R = R0 = 300 кПа (Таблица П 2.5/1/)

 - коэффициент учитывающий меньший удельный вес грунта лежащего на обрезах фундамента по сравнению с удельным весом материала фундамента (в практических расчетах принимается )

 м

примем b = 0,5 м

 кПа

Так как  кПа, Rср<R, то ширина фундамента определена верно, и может быть принята за окончательный размер.

10 РАСЧЕТ РАСХОДА ТЕПЛА НА ОТОПЛЕНИЕ И РАЗРАБОТКА СХЕМЫ ОТОПЛЕНИЯ

10.1 Определение расчетного расхода воздуха в системах вентиляции

Определение воздухообмена для удаления избыточной теплоты

,          (10.1)

где Lwz – расход воздуха, удаляемой из обслуживаемой или рабочей зоны помещения системами местных отсосов и на технологические нужды м3/с;

Q – избыточный явный тепловой поток в помещении;

C – теплоемкость воздуха (1200 Дж/(м3·0С));

tin – температура воздуха, подаваемого в помещение;

tlтемпература воздуха, удаляемого из помещения;

twzтемпература воздуха в обслуживаемом помещении;

,                           (10.2)

где Qвыдтепловой поток, выделяемый в помещение различными источни­ками;

Qпоттепловой поток, теряемый наружными ограждениями.

10.1.1 Определение теплопоступления

Теплопоступление от электродвигателей и механического оборудования

,  (10.3)

* установленная мощность эл.дв., Вт;

   коэффициент использования установленной мощности (0,7…0,9);

   коэффициент загрузки (0,5…0,8);

  коэффициент одновременности работы электродвигателей (0,5…1);

*   Коэффициент перехода механической энергии в тепловую (0,1…1);

*  КПД электродвигателя (0,75…0,9).

Примем установленную мощность электродвигателей  кВт

 Вт

Теплопоступление от освещения

 ,                   (10.5)

E – освещенность (Е ≈ 300 Лк при люминицентных светильниках);

F – площадь помещения (210,2 м2);

qосв – удельное выделение теплоты на 1 Лк освещенности (0,05…0,13 Вт);

η – доля тепловой энергии, попадающей в помещение, если лампа нахо­дится вне помещения (за остекленной поверхностью) или в потоке вытяж­ного воздуха (η = 0,55).

 Вт

Количество теплоты, выделяемое людьми

,                           (10.6)

ni – число людей в определенной физической группе i;

qлi – тепловыделение одного человека в группе

,   (10.7)

βи – коэффициент, учитывающий эффективность работы (βи = 1,07 – работы средней тяжести);

 βод – коэффициент, учитывающий теплозащитные свойства одежды (0,65 – для обычной одежды);

vв – скорость движения воздуха в помещении (0,2…0,4 м/с при работах средней тяжести).

 Вт/чел

 Вт

Количество теплоты солнечной радиации, поступающее в помещение через непрозрачные и прозрачные ограждения

Теплопоступление от солнечной радиации через остекленное ограждение

,                           (10.8)

Теплопоступление через непрозрачные поверхности

,                           (10.9)

F0, Fп – площадь поверхности остекления и покрытия, м2;

q0удельное поступление тепла солнечной радиации через остекление в зависимости от широты местности и ориентации по сторонам горизонта

(q0 = 80 Вт/м2 для северной ориентации (СНиП 2.01.01-82));

qпудельное поступление тепла через покрытие (qп = 17,5 Вт/м2);

A0 – коэффициент, учитывающий характер и конструкцию остекления (для  обычных оконных стекол A0 = 1,45);

kп – коэффициент, учитывающий конструкцию покрытия.

 Вт

 Вт

Общее теплопоступление

 Вт

10.1.2 Определение теплопотерь помещения

Потери тепла через ограждающие конструкции

,    (10.10)

где Ai – расчетная площадь ограждающих конструкций, м2;

Ri – сопротивление теплопередачи ограждающей конструкции;

 ,                     (10.11)

αв, αн – коэффициент теплоотдачи внутренней и наружной поверхности ог­раждения;

Rk – термическое сопротивление ограждающих конструкций;

,           (10.12)

R1, R2, Rm термическое сопротивление отдельных элементов ограждающей конструкции;

Rвп – термическое сопротивление замкнутой воздушной прослойки;

αн – коэффициент теплоотдачи наружной поверхности ограждений конст­рукции по местным условиям определяется по формуле:

,                   (10.13)

v = 3,6 м/с – минимальное из средних скоростей ветра за июль (СНиП 2.01.01 – 82);

tp – расчетная температура воздуха в помещении;

text – расчетная температура наружного воздуха (-350С для Уфы по СНиП 2.01.01 – 82);

  Вт/(м2·0С)

  (м2·0С)/Вт

  (м2·0С)/Вт

Потери теплоты ограждающих конструкций в зимний период

 Вт

Потери теплоты ограждающих конструкций в летний период

  Вт

Определим избыточный явный тепловой поток в летний период

 Вт

Определим воздухообмен для удаления избыточной теплота

 м3/с

Определим воздухообмен для удаления вредных веществ

Lw,z=0,1

расход воздуха, удаляемого из обслуживаемой или рабочей зоны помещения системами местных отсосов, и на технологические нужды, м3/ч.

mpo=0,0003

расход каждого из вредных или взрывоопасных веществ, поступающих в воздух помещения, кг/с;

qw,z,=0,0006

 ql=0,00006

концентрация вредного или взрывоопасного вещества в воздухе, удаляемом соответственно из обслуживаемой или рабочей зоны помещения и за ее пределами, кг/м3;

qin=0

концентрация вредного или взрывоопасного вещества в воздухе, подаваемом в помещение, мг/м3;

Так как воздухообмен рассчитанный для удаления избыточного тепла оказался больше воздухообмена для удаления вредных веществ, то расчет системы вентиляции ведем по нему.

Рассчитаем площадь воздуховода системы вентиляции

где Q – необходимый воздухообмен, м3/с

nм максимальную скорость движения воздуха, м/с, по формуле

nм = Кnn                                                

nn=3,5

- нормируемая скорость движения воздуха, м/с,в обслуживаемой зоне или на рабочих местах в рабочей зоне помещения: (СНиП 2.04.05-91 приложение 3)

К=1,8

- коэффициент перехода от нормируемой скорости движения воздуха в помещении к максимальной скорости в струе, определяемый по обязательному приложению 6 (СНиП 2.04.05-91)

nм = Кnn=3,5*1,8=6,3 м/с

Принимаем воздуховод из оцинкованной стали d = 0,65 м по ГОСТ14918-80

11 РАСЧЕТ РАСХОДА ТЕПЛА НА ОТОПЛЕНИЕ И РАЗРАБОТКА СХЕМЫ ОТОПЛЕНИЯ

11.1 Определение тепловой мощности системы отопления

                (11.1)

 Вт

 Вт

так как общее теплопоступление (от электродвигателей и механического оборудования, выделяемое людьми, от освещения,  от солнечной радиации через остекленное ограждение, через непрозрачные поверхности) значи­тельно больше потери теплоты ограждающих конструкций в зимний период, то отопление не рассчитываем.

12 РАСЧЕТ КАНАЛИЗАЦИОННЫХ СЕТЕЙ И ВОДОСНАБЖЕНИЯ

12.1 Расчет водоснабжения

 

Определим необходимый расход воды

Водоснабжение цеха по переработке зерна (мельница) предусматривается от существующего поселкового водопровода. Подключение осуществляется врезкой в существующий водопровод с устройством двух проектируемых ко­лодцев с установкой у них отключающей арматуры.

Напор в точку подключения 50 – 60м. Наружная сеть водопровода принята закольцованная и прокладывается в земле на глубине не менее 2,30 м от пла­нировочной поверхности земли до низа трубы диаметром 110 мм из полиэти­леновых труб ПНД типа С по ГОСТ 18599 – 83. Учет расхода воды преду­сматривается крыльчатым счетчиком воды ВСКМ – 30/504.

Расход воды на внутреннее пожаротушение составляет 10 л/с (2 струи по 5 литров на секунду). Пожарные краны приняты диаметром 65 мм. Сис­тема водопровода монтируется из стальных электросварных труб ГОСТ 10704 – 74ж и стальных водогазопроводных труб ГОСТ 3262 – 75ж.

Примерный суточный расход воды в пиковые периоды загрузки мельницы составляет примерно 518,4 л/сут.

Определим средний часовой и секундный расход воды:

*          л/ч

*          л/с

*Определим необходимый диаметр трубопровода для водоснабжения цеха при скорости движения воды 1 м/с

* ,                                 (12.1)

– средняя скорость движения воды;

 м

Примем диаметр трубопровода равным 10,2 мм

12.2 Расчет канализационных сетей

Канализация не требуется т.к. в технологическом процессе производства муки вода используется полностью, и ее расход мал

БИБЛИОГРАФИЯ

1.   СНиП || - 3-79** «Строительная теплотехника»

2.   СНиП 01.01-82 «Строительная климотология»

3.   СНиП 2.02.01-83 «Основание зданий и сооружений»

4.   СНиП ||-26-76 «Кровли»

5.   СНиП 2.01.07-85 «Нагрузки и воздействия»

ОГЛАВЛЕНИЕ

1.   Технико-экономическое обоснование проектирования………………..….5

2.   Исходные данные……………………………………………………….……6

3.   Описание технологического процесса………………………………….…..7

4.   Выбор технологического оборудования……………………………………8

5.   Планировка помещений……………………………………………………..9

6.   Теплотехнический расчет ограждающих конструкций и конструирование наружных стен помещения……………………………………………...…10

7.   Расчет и конструирование окон и дверей…………………………………13

8.   Расчет и конструирование перекрытия, потолка, кровли и пола………..14

9.   Расчет и конструирование фундаментов здания…………………………17

10.    Расчет расхода тепла на отопление ………………………………………20

11.   Разработка схемы отопления………………………………………………24

12.    Расчет канализационных сетей водоснабжения  ..……………………....25

       БИБЛИОГРАФИЯ………………………………………………………...27


© 2012 Рефераты, доклады и дипломные работы, курсовые работы бесплатно.