рефераты
Главная

Рефераты по международному публичному праву

Рефераты по международному частному праву

Рефераты по международным отношениям

Рефераты по культуре и искусству

Рефераты по менеджменту

Рефераты по металлургии

Рефераты по муниципальному праву

Рефераты по налогообложению

Рефераты по оккультизму и уфологии

Рефераты по педагогике

Рефераты по политологии

Рефераты по праву

Биографии

Рефераты по предпринимательству

Рефераты по психологии

Рефераты по радиоэлектронике

Рефераты по риторике

Рефераты по социологии

Рефераты по статистике

Рефераты по страхованию

Рефераты по строительству

Рефераты по таможенной системе

Сочинения по литературе и русскому языку

Рефераты по теории государства и права

Рефераты по теории организации

Рефераты по теплотехнике

Рефераты по технологии

Рефераты по товароведению

Рефераты по транспорту

Рефераты по трудовому праву

Рефераты по туризму

Рефераты по уголовному праву и процессу

Рефераты по управлению

Реферат: Проект дома

Реферат: Проект дома

МИНИСТЕРСТВО ОБРАЗОВАНИЕ РЕСПУБЛИКА БЕЛАРУСЬ

БЕЛОРУСКИЙ ГОСУДАРСТВЕННЫЙ УНИВЕРСИТЕТ ТРАНСПОРТА


ПОЯСНИТЕЛЬНАЯ ЗАПИСКА

К КУРСОВОЙ РАБОТЕ

по дисциплине «архитектура»

на тему:

«10-ти квартирный жилой дом в городе Гомеле.»


 


ВЫПОЛНИЛ:                                                                                                     ПРОВЕРИЛ:

СТУДЕНТ гр.ПК -21                                                                                     ПРЕПОДАВАТЕЛЬ

Власов Ю.А.                                                                                                         Карамышев А.С.

 

2003

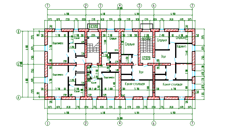
Паспорт проекта 10-квартирного жилого дома в г. Гомеле.

                                  План 1-го этажа.                        План 2-го этажа.


1.Исходные данные для проектирова­ния

1.1.  Климатические данные пункта           строительства

Гомель расположен во 2-м климатическом поясе. Этот район характеризуется умеренными температурами зимой и летом. Ос­новные климатологические данные по городу Гомелю (СниП 2.01.01-82 «Строитель­ная климатология) приведены в таблице 1.1.1.

Таблица 1.1.1.

Климатоло­гический район строитель­ства Расчетные температуры наружного воздуха, °С Влажностно-климатологиче­ская характери­стика района строительства
Абсолютно минимальная температура Средне – макси­мальное значение холодной пятидневки Средне – ми­нимальное значение нльное значение нх суток Средняя темпера­тура за июль
||В -32 -24 -28 17,8 Зона нормаль­ная

1.2 Санитарно-гигиенические требования

В соответствии со СНиП 2.08.01-89 «Жилые здания» здание должно быть оборудовано водопроводом, канализацией, горячим водоснабжением, центральным отоплением, вентиляцией, электроосвещением, газоснабжение и  слаботочными устройствами (радио, телефон, телевидение). 

Основные санитарно-гигиенические требования к помещениям квартир приведены в таблице 1.2.1.

Таблица 1.2.1.

Расчетная температура внутреннего воздуха в жи­лых помещениях, оC

Относительная влаж­ность внутреннего воз­духа, % Минимальная высота помещений, м
18 табл. 10 /2/ 30-60 табл. 1 /3/ 2,5 п. 1.1 /2/

В соответствии со СНиП [2] продолжительность инсоляции должна быть обеспечена в 1-2-3-комнатных квартирах не менее чем в одной ком­нате. В общежитиях должно инсолироваться не менее 60% жилых комнат.

Естественное освещение должны иметь жилые комнаты, кухни, вход­ные тамбуры, лестничные клетки, общие коридоры в жилых зданиях. При этом отношение площади световых проёмов всех жилых комнат и кухонь к площади пола этих помещений не должно превышать 1: 5,5. Минимальное отношение не менее 1:8.

Помещение должно иметь проветривание через фрамуги или форточки.

Лестничные клетки должны быть освещены через окна в наружных стёклах каждого этажа, проветривание лестничной клетки должно быть обеспечено через открывающиеся остеклённые проёмы площадью откры­ва­ния на каждом этаже не менее 1,2 м2.

При входе в секции должны быть предусмотрены тамбуры с двумя ря­дами дверей.

1.3. Характеристика класса здания

Заданием предусмотрено запроектировать здание 2 класса. По СНиП [2] жилые здания 2 класса должны быть запроектированы по долговечности и стойкости основных конструкций не ниже 2 степени. Требуемые грунты возгораемости и минимальные пределы огнестойкости основных строительных конструкций (в часах) приведены в табл. 1.3.1. (СНиП [4]).

Таблица 1.3.1.

Степень огне­стойкости здания Основные  строительные конструкции
Несущие стены и стены лестничных клеток Лестничные площадки и марши в лест­ничных клет­ках Внутренние несущие стены и пере­городки Конструкции междуэтажных и чердачных перекрытий
||

Несгораемые

          2

Несгораемые

         1

Несгораемые

          1

Несгораемые

          0,75

Заданием на проектирование предусмотрены стены кирпичные эффективной кладки, перекрытия и лестницы  - железобетонные,    перегородки – гипсобетонные. Фактические группы возгораемости и степень огнестойкости основных конструкций приведены в таблице 1.3.2.

Таблица 1.3.2.

Стены из обыкно­венного глиняного кирпича d ³ 380 мм Лестничные пло­щадки и марши из сборного железобе­тона

Гипсобетонные пе­регородки

толщина > 3 см

Железобетонные сборные плиты(арматура из стали классов А-I; А-II; А-IV

Несгораемые

||

Несгораемые

1,1

Несгораемые

2,2

Несгораемые

0,9

 

1.4. Требования функционального процесса

В нашем случае в квартирах должны быть предусмотрены следующие помещения:

-     жилые – общая комната и спальня;

-     подсобные – кухня, передняя, ванная, туалет, хозяйственная кладо­вая или шкаф, а также могут быть предусмотрены антресоли.

В квартирах следует предусматривать места для устройства встроен­ных шкафов для одежды и других предметов домашней утвари.

Площадь жилой комнаты и кухни должна быть не менее 8 м2. В однокомнатных квартирах допускается устройство совместных санузлов. Двери уборной, ванной и совмещённого санузла должны открываться наружу.

Вход в помещение, оборудованное унитазом, непосредственно из кухни и жилых помещений не допускается.

Не допускается размещение уборной и ванной непосредственно над жилыми комнатами и кухнями.

Ширина подсобных помещений квартир должна быть, м не менее:

кухня – 1,7 м; передняя – 1,4 м; внутриквартирные коридоры – 0,85 м;

уборные – 0,8 м;

Функциональное и акустическое зонирование помещений квартир должно обеспечивать комфортные наилучшие условия.

2. Объёмно планировочное решение здания

 

          Данный 10-ти квартирный жилой дом является двухсекционным с использованием секции Т1-1-2.

Секция относится к категории секций частично ограниченной ориента­ции. Она допускает меридианную ориентацию на местности, то есть распо­ложение продольной оси здания в направлении север-юг с допускаемым уг­лом  отклонения не более 30о.

Квартиры имеют раздельные санузлы. Спальные комнаты во всех квартирах располагаются в глубине квартир, что позволяет получить высокий акустический комфорт.

Квартиры имеют встроенные шкафы, открывающиеся в внутриквар­тирные коридоры. Площади жилых комнат и вспомогательных помещений приняты в соответствии со СНиП [2].

Общие комнаты и спальни имеют пропорции длины и ширины близ­кие к прямоугольнику, что позволяет лёгкую и вариантную расстановку ме­бели.

В данном курсовом проекте здание является двухэтажным с высотой этажей принятой 2,8 м. Здание  безподвальное.


3.Инженерное оборудование здания.

Здание оборудовано центральным отоплением от района ТЕЦ, приборы отопления – батареи радиаторы N1 – 140, расположены в подоконных нишах.

Ванна, умывальник, раковина мойка обеспечиваются холодной и горячей водой из системы горячего водоснабжения от районной ТЕЦ.

Ванная комната оборудована чугунной ванной длинной 170см., уборные – керамическим  унитазами с низко расположенными смывными бочками.

Канализационная система дома отводится к городским канализационным сетям. Вентиляция предусмотрена естественная, вытяжка через вентиляционные каналы, расположенные во внутренних стенах по осям. Вентиляционные решетки в кухне, санузлах и ванных.

Здание оборудовано скрытой электропроводкой, поквартирными электросчетчиками, расположенными на лестничных клетках (площадках). Радио телефоны установлены во всех квартирах, телеантенны – коллективные.  Кухни оборудованы 4-х конфорочными газовыми плитами.

4. Внутренняя отделка помещений.

Внутренняя поверхность стен и перегородок оштукатуриваются известковой – песчаным раствором. Стены ванных комнат и санузлов обшиваются керамической плиткой на высоту 1,8 м.

Потолки всех помещений окрашиваются в белый цвет водоэмульсионной краской, стены жилых комнат и пристроек оклеиваются высококачественными обоями, стены кухни моющимися обоями.

Столярные изделия (оконные рамы, двери) окрашивают белой эмалью за два раза после шпаклевки и грунтовки.

Полы в жилых комнатах приняты из досок по лагам (первый этаж).

Аналогичные полы на кухне, в прихожей и коридоре, полы в ванной комнате и в санузле покрыты керамической плиткой на цементно-песчаном растворе.  

5. Фасады

Фасады решены в простых лаконичных формах, характерных для архитектуры современного жилого здания.

Ритм, размеры и пропорции окон позволяют полностью выявить внутреннюю структуру жилого дома.

Так как наружные стены выполнены из лицевого красного кирпича, то дополнительной отделки стен не требуется, фундаментные блоки на фа­саде штукатурятся известково-песчаным раствором и окрашиваются фасад­ной краской.

Фактура и цвет железобетонных перемычек сохраняются без специальной окраски.

Наружные поверхности оконных переплётов окрашиваются за два раза масляной краской.


6. Конструктивное решение здания.

6.1 Конструктивный остов здания.

Несущий остов здания составляют массивные кирпичные стены и ж/б перекрытия и покрытие. Несущими являются поперечные стены. Продольные стены являются самонесущими. Шаг стен   12,6 и 3 м (по осям).

6.2 Фундаменты.

Фундаменты под наружные и внутренние стены ленточные сборные железобетонные. Фундаменты монтируются кранами отдельными элементами.

6.3 Стены.

Внутренние стены выполняются из полнотелого глиняного кирпича на цементно песчаном растворе толщиной 380 мм. Во внутренних стенах располагаются вентиляционные каналы сечением 140∙140мм.

Кладка наружных стен колодцевая из керамического  эффективного кирпича с гибкими связями.

Утеплитель – полистеролбетонные плиты 240 мм. Гидроизоляционная пленка.

6.4 Перекрытия.

Перекрытия между этажами и чердачные выполняются из сборных ж/б изделий по общесоюзному каталогу.

Используются при типоразмера предварительно напряженных панелей с круглыми пустотами длинной 2980 и 5980, шириной 1190 и 1490 мм, толщиной   220м.

6.5 Перегородки.

Перегородки, разделяют жилые комнаты, выполнены из гипсобетонных изделий  δ=80 мм.

Межквартирные перегородки и перегородки санузлов выполнены из керамического кирпича  δ=120 мм.

6.6 Лестницы.

Лестницы запроектированы из укреплённых ж/б элементов – площадок и лестничных маршей, лестничные площадки и марши приняты по общепринятому каталогу.

6.7 Крыша.

Запроектирована чердачная четырех скатная (полувальковая) крыша из метало- черепицы МП " Монтеррей " по деревянной обрешетке.

Сечение строил 200 ∙ 80 мм, обрешетки 40 ∙ 40 мм.

6.8 Окна и двери.

Окна и балконные двери принял с тройным остеклением  по СТБ 939-93 следующих марок ОДЗС 15 ∙ 18, ОДЗС 15 ∙ 12, ОДЗС 9 ∙ 18.

Все двери приняты деревянными по СТБ 1138-98 следующих марок:

ДНДГ 21 ∙ 13, ДВДТ 21 ∙ 9П;

ДВДГ 21 ∙ 7 ЛП, ДВДТ 21 ∙ 7П;

ДВДО 21 ∙ 13, ДВДО 21 ∙ 9, ДВДО 21 ∙ 9Л;

ДВДО 21 ∙ 8, ДВДО 21 ∙ 8Л;


7. Теплотехнический расчет наружных стен.

Rtэм.

 Rtнорм. 

Rtтр.

 
Теплотехнический расчет выполняется из условия 

Rt ≥

 
,где Rtэм – экологически целесообразное сопротивление теплопередаче, м2˚С/Вт 2Тэл не определяем с в силу неопределённости цен на тепловую энергию и строительные материалы.

Rtнорм. – нормальное сопротивление теплопередаче, м2˚С/Вт согласно СНиП [2] для наружных стен применяется Rtнорм.=2∙( м2˚С/Вт) по таблице 5.1 [2]

Rtтр. – требуемое сопротивление теплопередаче м2˚С/Вт.

Приняты условные обозначения:

КЭУ – кирпич керамический ; лицевой эффект.

ПЛ – полистирольные плиты.

КРЭУ – кирпич керамический рядовой эффект утолщенный ГОСТ 530-80

ПН – пароизоляционный слой из полиэтиленовой пленки толщенной 0,2-0,3 мм ГОСТ 10354-82.

НПШ – известково-песчаная штукатурка.

Утеплитель из плит полистирол бетона. Теплотехнические характеристики наружных стен предусмотрены в таблице 7.1

Таблица 7.1.

Наименование

слоя

Плотность

Кг/м3

Толщина слоя

δ,м

Расчет коэффициента

Теплопроводности

λ,Вт/ м2˚С

Расчет коэффициента

усвоения

ρ,Вт/ м2˚С

КЭУ

1600

0,12

0,78

8,48

ПЛ

800

0,14

0,10

1,56

КРЭУ

1600

0,38

0,79

8,48

НПШ

1600

0,02

0,81

9,76

По таблице 4.2 СНиП [2], определяем, что для теплотехнических расчетов отражающий контактирующий тепло-физические характеристики материалов необходимо принимать по графе "Б" приложение А1[2].

Принятая конструкция стены имеет сопротивление теплоотдаче 2,379 м2˚С/Вт, что отвечает требуемым нормам.

Проверяем соответствие Rt> Rtтр.

Требуемое сопротивление теплоотдаче ограждений определяем по форме

Rtтр=(h∙(tB∙tn))/∆ tBαB   (1),где tB – расчетная температура, ˚С внутреннего воздуха, принимаемая по таблице tB=18˚С.

tn – расчетная зимняя температура, наружного воздуха принимаемая по таблице с учетом тепловой инерции ограждения Д (за исключением заполнителей проёмов).

Д по формуле :

Д=Є RiSi=Σ( ji/λi)∙Si (2)

Д=(0.12/0.72)∙8.48+(0.14/0.1)∙1.56+(0.38/0.79)∙8.48+(0.02/0.81)∙9.76=7.9

Тогда tn – принимаем равной минус 29˚С. n – коэффициент, учитывающий положение наружной поверхности ограждающей конструкцию по отношению к наружному воздуху, принимаемой по таблице 5,5[2] n=1.

∆ tB –расширенный перепад, ˚С м/с температурой внутренней поверхности ограждаемой конструкции принимаемый по таблице 5,5[2], tB=6˚С

αB – коэффициент теплопередачи Вт/ м2˚С внутренней поверхности ограждающей поверхности ограждающей конструкции принимаемый по таблице  5,5[2],               αB=8,7 Вт/ м2˚С

Определяем Rtтр:

Rtтр= (1∙(18+29))/6∙8,7=0,9 м2˚С/Вт

Так как Rt=2= Rtнорм.  > Rtтр=0,9 м2˚С/Вт, то принятая конструкция стен отвечает техническим требованиям.


8. Теплотехнический расчёт чердачного перекрытия.

Конструкция чердачного перекрытия и теплотехнические характеристики предоставлены в таблице 8.1

Таблица 8.1.

Номер

слоя

Наименование

Слоя

γ,кг/м3

δ, м

λ,

 Вт/ м2˚С

ρ,

Вт/ м2˚С

1

цементно-песчаная

стяжка

1800

0,02

0,93

11,00

2

утеплитель – плиты полистеролбетоная

изоляция  

300

0,25

0,092

1,42

3

ж/б плита покрытия

2500

0,22

1,92

17,98

По таблице 4.2[2] определяем, что для теплотехнических расчетов чердачных перекрытий тепло-физические характеристики необходимо принимать по графе "А" приложения А1[2].

Теплотехнический расчет выполняется из условия

Подпись: Rt ≥max    Подпись: Rtэкон.
 Rtнорм.  
Rtтр.


Rtэкон. не определяем в силу неопределенности цен на топливную энергию и строительные материалы, согласно СНБ для чердачных перекрытий принимаем нормативное сопротивление теплопередачи Rtнорм.  = 3 м2 ∙ с/Вт  по таблице 5.1[2].

Толщину утеплителя определяем из условия Rt = Rtнорм.   Или

                           

Все обозначения указаны в пункте.

                  , тогда        

                

Конструктивно принимаем                      . Проверим соотношение Rt ≥ Rtтреб.

По формуле (1) смотреть пункт 7. определяем тепловую энергию ограждения Д.

          

Принимаем по таблице 4.3 [2], tн = -19 ˚С по таблице 5.5[2] ∆tв=4˚С , по таблице 4.1 [2], tв=18˚С ,по таблице 5.3[2] n=1, по таблице 5.4[2]

  тогда                                                       

Так как , то принятая конструкция чердачного перекрытия отвечает теплотехническим требованием.

9. Технико-экономическая часть.

Число этажей    - 2

Число секции    - 2

Число квартир – 5

Таблица 9.1.

Наименований

показателей

Ед.

Изм.

Однокомно-

тная кварт

Двух комнатная

квартира

Трех комнатная

квартира

Всего по

дому

Жилая площадь

м2

16,2

29,4

40,8

345,6

Вспомогательная

площадь Fвс

м2

15,6

19,2

24,3

236,4

Общая площадь

м2

31,8

48,6

65,1

582,0

Строительный

объём здания,v

м3

-

-

-

3588,3

Планировочный

коэффициент К1=Fж/

0,51

0,6

0,63

0,59

Объёмный коэффициент К2=V/Fo

-

-

-

6,2

Площадь застройки

м2

-

-

-

452,5


Литература.

1.   СНиП 2.08.01-89 Жилые здания  М Стройиздат 1972г.

2.   СНиП 2.04.01-97 Строительная теплотехника.

3.   СНБ 2.04.02-2000 Строительная климатология.

4.   СНиП 2.01.02-85 Пожарные нормы Госстрой СССР М Стройиздат 1986г.

5.   СТБ 939-93 Окна и балконы, двери для здании и сооружений.

6.   СТБ 1138-98 Двери и ворота для здании и сооружении.

7.   Сборник 3.01-15 Общесоюзный каталог индустриальных конструкции, обязательных для применения в строительстве кирпичных и крупноблочных жилых и общественных зданий . М. ЦИТП 1975г.


© 2012 Рефераты, доклады и дипломные работы, курсовые работы бесплатно.