рефераты
Главная

Рефераты по международному публичному праву

Рефераты по международному частному праву

Рефераты по международным отношениям

Рефераты по культуре и искусству

Рефераты по менеджменту

Рефераты по металлургии

Рефераты по муниципальному праву

Рефераты по налогообложению

Рефераты по оккультизму и уфологии

Рефераты по педагогике

Рефераты по политологии

Рефераты по праву

Биографии

Рефераты по предпринимательству

Рефераты по психологии

Рефераты по радиоэлектронике

Рефераты по риторике

Рефераты по социологии

Рефераты по статистике

Рефераты по страхованию

Рефераты по строительству

Рефераты по таможенной системе

Сочинения по литературе и русскому языку

Рефераты по теории государства и права

Рефераты по теории организации

Рефераты по теплотехнике

Рефераты по технологии

Рефераты по товароведению

Рефераты по транспорту

Рефераты по трудовому праву

Рефераты по туризму

Рефераты по уголовному праву и процессу

Рефераты по управлению

Курсовая работа: Многосекционные жилые дома. Композиционное решение рынков и торговых центров

Курсовая работа: Многосекционные жилые дома. Композиционное решение рынков и торговых центров

Содержание

1. Многосекционные жилые дома

2. Объемно-планировочная структура основных типов многосекционных жилых зданий

Торговый центр жилого района

Крытые рынки

Эркеры

Подвесные потолки

Типы подвесных потолков


1. Многосекционные жилые дома

Секционные жилые дома - это здания, состоящие из нескольких однотипных по структуре планировки блок секций, различающихся по этажности, протяженности и конфигурации.

Секция - это часть жилого дома, квартиры которой имеют выход на одну лестничную клетку общего пользования и которая отделена от других частей здания глухой стеной или сплошной межквартирной перегородкой (двойная с воздушным зазором). Планировочное решение секции зависит от числа квартир, выходящих на поэтажную лестничную площадку. Принимая во внимание, что многочисленные семьи планируется расселить в усадебных и блокированных домах, квартиры в жилых секциях должны быть одно-, двух- и трехкомнатными (для малых и средних по величине семей). Рекомендуется разрабатывать блок-секцию с тремя или четырьмя квартирами на этаже. Ориентация квартир должна отвечать требованиям инсоляции - обеспечивать прямое попадание солнечных лучей в одно-, двух - и трехкомнатных квартирах не менее чем в одной комнате. Рациональность решения объема здания во многом определяется и обеспечением минимальных теплопотерь. Это достигается за счет увеличения ширины корпуса, расположения в средней части помещений, не нуждающихся в естественном освещении, примыканием к наружным стенам узкой стороны жилой комнаты. В без лифтовых многосекционных домах малой и средней этажности (2-5-этажных) применяются чаще всего двухмаршевые лестницы, размещаемые в середине секции или со стороны двора (если это совпадает с северной ориентацией) или с северной стороны дома - для увеличения количества жилых комнат, выходящих на благоприятную сторону горизонта. Чаще всего жилые секции проектируются на основе прямоугольной модульной координационной сетки, что в большей степени соответствует естественной форме элементов квартиры (жилых и подсобных помещений, лестничных маршей), технологии более экономичного возведения зданий и т.д. Однако творческое сочетание простых в плане блок секций может привести к созданию разнообразных по композиционному строю и выразительности жилых комплексов. Для этого применяют как минимум три основных типа секций: рядовые, торцевые и поворотные.

Рядовая секция - это секция, как правило, прямолинейного очертания, находящаяся между двумя другими частями жилого дома.

Торцевые секции располагаются по краям дома. Одна из стен секции должна блокироваться с соседней рядовой секцией. Зачастую торцевая секция повторяет планировку рядовой секции с изменением конструкции торцевой наружной стены. Она может быть глухой или с оконным проемом, лоджиями или балконами.

Поворотные секции применяют для формирования домов сложной конфигурации. Наиболее часто встречаются угловые секции с поворотом на 135 или 90 градусов. Поворотные секции проектируются как рядовыми, так и торцевыми.

Секции различной конфигурации, этажности, числа и типов квартир объединяются в одну серию.

Секции в рамках одной серии разрабатываются на основе однотипных конструктивных и планировочных схем. Например, если принята та или иная конструктивная система несущих элементов, то она должна использоваться во всех секциях. Это важно для оптимизации строительного процесса. Квартиры во всех секциях должны быть с одинаковой степенью комфорта, что достигается за счет применения единого планировочного приема и одинаковой инженерной оснащенности.


2. Объемно-планировочная структура основных типов многосекционных жилых зданий

Многосекционные жилые здания формируются путем блокировки нескольких секций, являющихся элементами объемно-планировочной структуры здания. Секции проектируют рядовыми и поворотными, в том числе с торцевыми окончаниями или без них.

Рядовые секции (в том числе с торцевыми окончаниями) по форме плана бывают прямолинейными, уступообразными, а также усложненной формы (в том числе криволинейной, Т-образной и т.д.).

Поворотные секции (в том числе угловые) позволяют проектировать здание с развитием:

1) в двух направлениях (секции с углами поворота на 90°, 135° и др. - угловые секции);

2) в трех направлениях (секции с углами поворота на 90°, 120° и др.).

Четырехлучевые секции встречаются довольно редко.

По условиям ориентации по сторонам света и обеспечения инсоляции квартир секции многосекционных жилых зданий проектируются:

универсальной (неограниченной) ориентации;

частично ограниченной ориентации (широтные);

ограниченной ориентации (меридиональные).

Секции имеют неограниченную ориентацию, если квартиры в них обеспечиваются нормативной инсоляцией при любой постановке секции относительно сторон горизонта. Как правило, число одноуровневых квартир на этаже такой секции может составлять одну, две или три.

Секция ограниченной ориентации, как правило, имеет на этаже четыре и более одноуровневых квартиры (или же одноуровневые и многоуровневые). Учитывая потребности инвалидов, пользующихся для передвижения колясками, не рекомендуется проектировать в жилых зданиях перепады уровней между выходами из лестничных клеток и входами в квартиры. Ширину лестниц следует предусматривать с учетом возможности размещения подъемника, перемещаемого наклонно вдоль лестничного марша. В связи с этим минимальная ширина лестничного марша - 1,2 м.

В секционных зданиях может быть устроен выход из квартир первого этажа на придомовую территорию. Приквартирные участки не рекомендуется размещать в местах ввода коммуникаций в жилое здание или над местами транзитного прохода коммуникаций. По числу квартир на этаже получили распространение двух-, трех-, четырехквартирные секции. Композиционное построение объемов многоквартирных жилых домов формируется за счет повторяемости планов этажей одинаковой конфигурации или планов этажей различной конфигурации. Одним из приемов объемно-пространственного построения жилых домов является террасирование их объемов. Террасные жилые дома проектируются как на плоском рельефе, так и на сложном. Террасирование объема жилого дома достигается за счет уменьшения размера комнат по торцам здания или по его фронту, уменьшения числа комнат в квартире, уменьшения числа квартир на этаже или же уменьшения числа этажей в смежных секциях.

В зарубежной практике широко используется прием смещения верхних этажей жилых домов по отношению к нижележащим этажам. При этом часть пространства в нижних этажах часто занимается под элементы общественного обслуживания или гаражи-стоянки.

Энергосберегающие характеристики жилых зданий достигаются за счет:

сокращения площади поверхности наружных стен путем уменьшения изрезанности объема здания;

увеличения ширины корпуса при соблюдении нормативных показателей по освещенности помещений;

увеличения протяженности здания (с учетом оптимизации градостроительных требований);

увеличения суммарной площади квартир на этаже;

применения планировочных элементов, способствующих повышению теплоэффективности жилого дома (в том числе использование лестничных клеток с верхним освещением - в жилых секциях до 3 этажей включительно).

Снижение шума в жилых домах может осуществляться:

применением специальной шумозащищенной планировки с преимущественной ориентацией на магистральную улицу подсобных и дополнительных помещений квартир, общих комнат 3-комнатных квартир, а также внеквартирных помещений (лестничных клеток);

конструктивных средств шумозащиты наружных ограждений зданий;

окон и балконных дверей с повышенными звукоизолирующими свойствами;

технических средств шумозащиты, в том числе клапанов-глушителей и др. (при обеспечении нормативного воздухообмена в квартире).

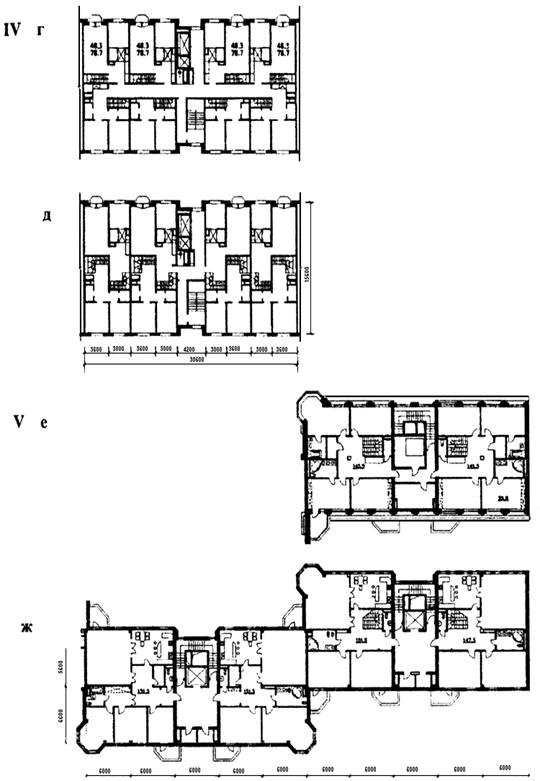
Примеры планировочных решений многосекционных жилых домов различной ориентации

I - рядовая и торцевая секции широтной ориентации; а - план типового этажа;

II - рядовая секция меридиональной ориентации; б - план типового этажа;

III - четырехсекционный жилой дом меридиональной ориентации; в - план типового этажа.

IV - шестиквартирная секция универсальной ориентации с двухуровневыми квартирами; г, д - планы этажей;

V - двухквартирные секции универсальной ориентации; е, ж - планы этажей.


Торговый центр жилого района

Магазины могут располагаться в отдельных зданиях по функциональному признаку (булочная, овощи-фрукты и так далее) и в торговых центрах.

За последние годы более широкое распространение получили торговые центры. Размещение торговых центров и объемно-планировочное решение необходимо предусматривать исходя из функционального назначения, месторасположения торговых предприятий и вида товаров: товары повседневного пользования (хлеб, мясо, рыба, бакалея, молочные продукты и др.) и товары периодического пользования (промтовары, готовое платье, головные уборы, радио и фототовары, велосипеды, парфюмерия и т, п.). Товары первой группы преобладают в магазинах микрорайонов и торговых центрах жилых районов, второй - магазинах торговых центров жилых районов и городов.


Торговый центр жилого района на 45 тыс. жителей:

а) - план первого этажа

б) - план второго этажа

5 - аптека

6 - промтоварный магазин

7 - парикмахерская

8 - предприятия хозяйственно-бытового обслуживания

1 - продовольственный магазин

2 - ресторан

3 - помещение для персонала

4 - отделение связи


Объемно-планировочные решения торговых центров могут быть самые разнообразные: в группе отдельно стоящих  зданий, расположенных в один ряд; в два ряда, образуя внутреннюю улицу; по периметру торговой площади; в одном здании и т.д.

Однозальный крытый рынок

1 - входной узел

2 - торговый зал

3 - лифты

4 - административно-обслуживающие помещения

При планировке торговых центров необходимо решить такие основные вопросы, как доступ к месту торговли, подъезды и стоянки легкового транспорта, подъезды грузового транспорта, доставляющего товары в магазины, место разгрузки товаров, место для хранения товаров и использованной тары. Надо проектировать здания так, чтобы доставка товаров, ее разгрузка, распаковка были изолированы от потока покупателей. Кооперированные торговые центры компонуют по ячейковой структуре с сеткой колонн преимущественно 6 X 6 или 6 X 12 м. При проектировании целесообразно предусматривать индивидуальные входы в помещения различного назначения - в отделение связи, аптеку или в помещении бытового обслуживания.

Высота торговых залов должна быть 3,3 м при площади до 300 м2, в залах большей площади высоту устанавливают 4,2 м, в подвальных помещениях - 2,7 м, а до выступающих конструкций - не менее 2,4 м.

Состав и площади помещений назначают в соответствии с СИиП II-Л.7-70.

Крытые рынки

Одним из комплексов торговых зданий районных и городских центров являются крытые рынки. Такие торговые предприятия, как крытые рынки, бывают двух типов: рынки для продажи сельскохозяйственных продуктов и комплексные рынки, где есть возможность и продать сельскохозяйственные продукты, и купить необходимые промтовары.

В первом типе рынков места продажи сельскохозяйственных продуктов расположены в центре зала и по периметру здания. В крытых рынках предусматривают торговые места постоянные, занимаемые государственными торговыми предприятиями, и разовые, предназначаемые для продажи товаров колхозами и отдельными лицами.

Торговые места распределяют по зонам: продажа картофеля, овощей, фруктов, ягод, мяса, дичи, рыбы и т.д.

Проходы проектируют различной ширины: основные 4-10 м, боковые 2,5-7 м, поперечные 1,5-5 м. Общую площадь торгового зала рынка устанавливают из расчета 0,5 м2 на одного покупателя, а площадь на одно торговое место принимают от 6 до 13 м2. Температура внутри помещений рынка должна быть зимой не менее +5°С, летом не более 4-18-20° С

Композиционное решение рынков - центрическое-компактное, блочное и павильонное. Центрическая композиция более удачна, она требует значительно меньшей площади участка, сметная стоимость зданий меньше на 10-14% и она более экономична и по текущим затратам.

Проектирование залов пространственной безопорной структуры с крупнопролетными покрытиями повышает на 7-10% экономичное использование площадей.

В рынке проектируют служебно-вспомогательные помещения: санитарного обслуживания, административные помещения. Кроме того, должны быть буфеты и туалеты. В помещениях санитарного обслуживания проверяют продукты, поступающие в продажу.

В административно-обслуживающих помещениях продавцы обеспечиваются оборудованием для торговли.

В большинстве рынков имеются подвальные помещения, часто обеспеченные холодильниками для хранения не проданных скоропортящихся товаров.

В рынках второго типа наряду с продажей сельскохозяйственных продуктов продают промышленные товары. На рисунке (см. рис. ниже) в центрально островных рядах торгуют продуктами сельского хозяйства, а в задней части и по окружности располагают магазины промтоваров.

К рынкам должны быть хорошие подходы, не пересекаемые транспортными магистралями, а также подъезды, на площадях перед рынками предусматривают стоянки легковых автомашин.

У крытых рынков необходимо иметь площадки для торговли летом непосредственно с автомашин или с открытых торговых мест.

Объем здания на одно торговое место по анализу ряда типовых проектов колеблется в широких пределах - от 70 до 110 м.

 
 



Эркеры

многосекционный жилой рынок торговый

Однозальный крытый рынок:

1 – магазины, 2 – торговые места, 3 – входы.

Эркер - вынесенная за плоскость фасадной стены часть помещений (преимущественно жилых комнат). Эркеры проектируют прямоугольной, треугольной, трапециевидной, полукруглой формы в плане. Назначение эркера - увеличение площади помещения и обогащение его интерьера, улучшение условий освещения и инсоляции помещений, обращенных на неблагоприятную сторону горизонта. Эркер имеет в своих вертикальных гранях окна или сплошное остекление.

Подобно лоджиям и балконам эркеры обогащают форму здания и служат композиционным средством масштабных и метроритмических членений фасадов. Иногда эркеры применяют в сочетании с лоджиями и балконами. Конструкции эркера (рис.1) проектируют в соответствии с объемно-планировочным и конструктивным решением здания.

Рис.1. Эркеры a - формы планов эркеров; б - эркер с несущими стенами; в - навесной зркер; г - навесной эркер в панельном доме, опертый на консоли внутренних стен; д - то же, на утепленную консоль перекрытия; е - то же, в кирпичном доме: эркер оперт на консольную, керамзитобетонную плиту; ж - стены эркера из панелей; и - то же, из объемного элемента; к - устройство эркера в объемно-блочном доме; 1 - железобетонная консоль панели внутренней стены; 2 - консоль перекрытия; 3 - консольная керамзитобетонная плита эркера; 4 - оконная перемычка; 5 - утепляющая панель.

Если объемно-планировочное решение здания предусматривает устройство эркера на всю высоту здания, эркер проектируют несущим, опирающимся на собственный фундамент. В домах с неповторяющимися поэтажными планами эркеры могут иметь различную протяженность по высоте здания, начинаться со второго или третьего этажа и т.п., представляя собой навесную конструкцию. В домах с массивными наружными стенами такие эркеры могут опираться на консольные плиты или балки, защемленные в наружных стенах. В зданиях с ненесущими наружными стенами конструкции эркера проектируют облегченными и опирают на различного типа консоли из внутренних несущих конструкций: консоли колонн каркаса, перекрытий, балки, защемленные во внутренних стенах.

В панельном домостроении используют для стен эркеров панели горизонтальной и однорядной разрезки либо объемные элементы, опертые на собственный фундамент или консоли перекрытий.

В навесных эркерах нижнее перекрытие представляет собой наружное ограждение, нуждающееся в эффективном утеплении. Поскольку полкомнаты в эркере и за его пределами должен находиться на одной отметке, утеплитель, находящийся под полом или в толще перекрытия, должен обладать минимальной толщиной при максимальной эффективности. Иногда утепление располагают под плитой перекрытия эркера в виде утепляющей панели или подвески слоев утепляющего материала и облицовочных плит. Покрытие эркера проектируют утепленным в виде совмещенной или чердачной крыши.

Подвесные потолки

С помощью подвесной конструкции можно не только скрыть дефекты старого потолка и сделать его более привлекательным внешне, но и выполнить его звукоизоляцию и даже улучшить освещение. С помощью подвесного потолка можно улучшить и теплоизоляцию в помещении. По этой причине устройство подвесного потолка может оказаться актуальным для коттеджа с деревянными перекрытиями.

Подвесной потолок позволяет перенести инженерные коммуникации - например, вентиляционное и тепловое оборудование, компьютерные разводки, электропроводку и слаботочные сети - в надпотолочное пространство. Спрятанное за подвесным потолком инженерное оборудование, расположенное под перекрытием, при необходимости ремонта будет легко доступно - в зависимости от конструкции потолка как локально, так и по всей его площади. Подвесной потолок позволяет разместить в пространстве за ним специальные приборы "быстрого реагирования", например, головки систем пожаротушения.

Для встраиваемого в подвесные потолки оборудования желательно предусматривать дополнительную опору. В любом случае необходимо, чтобы нагрузка приходилась на плиту, а на подвесную систему. Исключение составляют лишь легкие светильники, весом не более 3 кг. Однако и их можно опирать только на несущие и поперечные рейки максимальной высоты и ни в коем случае - на облегченные или укороченные рейки подвесной системы.

Выбирая подвесную систему, в которой предполагается проложить инженерные коммуникации с обеспечением легкого доступа, следует отдавать предпочтение конструкции, позволяющей без труда снимать отдельные элементы (панели или рейки), без какого-либо дополнительного демонтажа основной конструкции потолка.

При выборе подвесной системы необходимо учитывать и нагрузку, которую ей предстоит нести. Стандартная нагрузка, на которую в основном рассчитаны подвесные системы из потолочных плит или панелей, составляет от 4 до 6,5 кг/м2, однако существуют системы, способные выдержать и нагрузку вдвое больше - до 12 кг/м2.

Следует принять во внимание, что на степень нагрузки, которую в состоянии выдержать подвесная система, влияет и характер ее конструкции, в частности расстояние между подвесами и основными направляющими. Чем меньше расстояние, тем больше может быть допустимая максимальная нагрузка. Ведущие производители указывают максимальную нагрузку на единицу площади любой подвесной системы, которую та способна выдержать без ущерба для своих функциональных свойств.

К положительным аспектам можно отнести отсутствие "мокрых" процессов при установке подвесного потолка, легкость, простоту и скорость его монтажа, а следовательно небольшие затраты времени и сил для создания комфортных условий и дизайна интерьера в соответствии с современными требованиями.

Благодаря легкой универсальной конструкции и многообразию унифицированных аксессуаров подвесной потолок прекрасно вписывается практически в любой интерьер.

Не случайно сегодня в развитых странах подвесные потолки становятся все более популярными, в их дизайне постоянно возникают новые модные тенденции. Можно сказать, что в третьем тысячелетии изготовление и установка подвесных потолков будет самостоятельной строительной отраслью.

Следует сразу же обратить внимание на одно свойство подвесных потолков, которое в определенных обстоятельствах становится их недостатком. Они не рассчитаны на небольшую высоту помещений и плохо подходят для тех квартир, где эта величина составляет коло 2,75 м. Дело в том, что их конструкция предполагает подвешивание потолка на расстоянии 15 - 20 см от базовой поверхности, и эти несколько сантиметров для помещения с низким потолком оказывается очень существенным.

Установка подвесного потолка - наиболее технологичный и быстрый способ ремонта, поскольку не требуется ремонта старого (базового) потолка: подвесным потолком можно скрыть практически любые коммуникации, а его конструкция позволяет легко выровнять плоскость потолка по границе каркаса при монтаже.

Если потребуется впоследствии выполнить необходимый ремонт, не составляет труда заменить модули, не разбирая непосредственно потолочную конструкцию-каркас. Удобство заключается в том, что при необходимости такой потолок впоследствии может быть перенесен на другое место и установлен вновь, практически без потери материалов.

Разумеется это не единственная причина для установки подвесного потолка. Его можно установить и в обратном случае - например, если требуется создать рельефный подвесной потолок при плоском базовом. Наконец, подвесной вариант просто-напросто может оказаться наилучшим способом вернуть потолку красоту и чистоту, не затрачивая чрезмерных усилий. Обладая безупречным дизайном, подвесные потолки могут гармонично вписываться практически в любой интерьер, а благодаря прекрасной светоотражающей способности и звукоизоляции создадут идеальные условия для работы или отдыха, дружелюбную и спокойную атмосферу в доме.

Все подвесные потолки можно разделить на несколько типов по определенным признакам: материалу, из которого изготовлены панели, конструкции подвесной системы и функциональному назначению. Объединяет их одинаковый принцип крепления к базовой поверхности.

Типы подвесных потолков

Подвесные потолки можно разделить на несколько типов по различным признакам: по конструкции, материалам функциональному применению. В зависимости от конструкции все подвесные потолки можно разделить на модульные и сплошные.

Модульными подвесными потолками называют такие подвесные конструкции, видимую плоскость которых образуют квадратные или прямоугольные панели, рейки, кассеты, то есть готовые модули. Можно выделить следующие разновидности модульных подвесных потолков: плиточные, панельные, кассетные, реечные решетчатые и ячеистые.

Плиточными называют подвесные потолки состоящие из квадратных элементов поверхности (плиток), панельными - состоящие из прямоугольных модулей (панелей) шириной не менее 300 мм. Конструктивные элементы кассетных потолков монтируются на стандартную систему кассетного типа, которая после сборки образует ячейки стандартных размеров - 600х600 мм для небольших помещений и 600х 1200 мм для просторных комнат, - в них и закладываются панели или плиты (кассеты). При необходимости швы между панелями могут закрываться специальным профилем.

Реечные подвесные системы монтируются с помощью узких прямых реек, которые располагаются крест-накрест, решетчатые - из готовых решетчатых модулей. В обоих случаях полости в решетке делаются сквозными. Ячеистые потолки называются так, потому, что имеют полости, закрытые с тыльной стороны фоновой подложкой; чаще всего это полости квадратной формы (но встречаются и другие - шестигранная, сотовая, овальная).

Сплошные потолки (бескаркасные) позволяют создать абсолютно ровную и гладкую поверхность, которая внешне неотличима от обычного потолка.

Кроме того, необходимо упомянуть отдельную разновидность подвесного потолка - декоративные, состоящие из открытого подвешенного каркаса. Декоративные потолки могут подвешиваться как под плоскостью базового потолка, так и выступать в качестве дополнительного подвесного потолка, расположенного ниже первого.

Модули для подвесных потолков могут изготавливаться из минераловолокнистых, минераловатных (стекловатных) плит и панелей, армированного гипса и гипсокартона, металла, пластика, дерева и подобным материалов - ДВП, МДФ, ЦСП с отделкой шпоном или ламинатом под "дерево". Могут использоваться и другие составляющие.

Так, например, западные промышленники разработали специальные декоративные потолки - Ceramaguard, Newtone, Frequence, - использовав для их изготовления необычные материалы: керамику высокой плотности, и гидрат силиката кальция. Благодаря этому потолку получили 100% -ую влагостойкость, а последняя из перечисленных моделей - также и 70% звукопоглощения.

Сплошные подвесные потолки отличаются от модульных потолков в первую очередь характером работы - они выполняются не из готовых модулей, а из листового материала, которому предварительно нужно придать необходимые размеры и форму (зачастую изогнутую), а в заключение и выполнить необходимую декоративную отделку. Чаще всего в качестве материала для сплошных подвесных потолков используются гипсокартонные листы.

Сплошные подвесные потолки обладают теми же преимуществами, что и модульные, то есть позволяют сравнительно легко и быстро придать потолку эстетичный вид, скрыть инженерные коммуникации, разместить встроенные светильники. С их помощью также можно создавать многоуровневые потолки и криволинейные формы потолочного пространства.

Конструктивно они отличаются лишь тем, что требуют установки специальных люков для доступа к расположенным в межпотолочном пространстве коммуникациям.

Можно выделить и такую разновидность подвесных потолков, как рамки (из гипса), в которые можно устанавливать плиты из любого материала.

Таковы, например, потолки "Quadra" - разработка компании USG-DONN, - представляющие собой гипсовые потолочные рамки. Их можно использовать как самостоятельный вид отделки потолка (создается эффект открытого каркасного потолка), так и в сочетании с другими панелями. В последнем случае поверх гипсовой рамки устанавливается какая-либо другая потолочная панель (например, акустическая), что не только визуально приподнимает потолок, но и формирует необходимый акустический баланс в помещении.

В настоящее время создан и такой оригинальный вариант: потолочная плитка стандартного для модулей подвесного потолка размера 600 х 600 мм, но изготовленная из натянутого и закрепленного на каркасе полотна. Эти небольшие натяжные фрагменты устанавливаются в подвесную систему. В результате получается потолок, обладающий достоинствами и натяжной и подвесной конструкции: легкость, меньшая стоимость и, как следствие, большая доступность (известно, что натяжные потолки достаточно дороги), большой выбор цветовой гаммы и прекрасные технологические возможности, которые варьируются в зависимости от используемого материала. Так, подобная натяжная плитка, выполненная из материала с зеркальным покрытием, не конденсирует влагу; перфорированная может служить для улучшения акустических характеристик помещения.

Любой подвесной потолок - это сборная конструкция, включающая в себя подвесную систему и набор облицовочных блоков или панелей, так называемых растров, или модулей, непосредственно определяющих внешний вид потолка.

Подвесная система представляет собой несущую часть, в которую входят металлический каркас, подвески и детали крепления, с помощью которых каркас подвешивается к перекрытию на некотором расстоянии от потолка (отсюда и название).

Несущий каркас имеет достаточно небольшой вес и чаще всего монтируется в форме решетки из отдельных металлических профилей, удерживаемых в подвешенном состоянии с помощью металлических стержней, кронштейнов или даже толстой проволоки - подвесов, которые крепятся верхними концами с помощью дюбеля или анкера к базовому потолку, а нижними - к направляющим профилям каркаса. Чаще всего длину подвеса, а следовательно высоту подвесного потолка и его расстояние от базовой потолочной плиты можно регулировать, чтобы располагать плоскость потолка под нужным углом к горизонтали.

Таким образом, можно создавать разноуровневые потолки.

В подвесную систему входят следующие элементы: направляющие (главные и поперечные разной длины); угловые молдинги - небольшие согнутые под прямым углом рейки, и подвесы: толстая проволока, стержни или кронштейны. Роль несущих элементов отводится главным направляющим. Между ними, внахлест или встык, укрепляют поперечные направляющие, что позволяет образовывать модули различного размера.

Соединение поперечных и несущих реек может осуществляться по принципу крючка или при помощи защелкивающегося замка. Второй тип соединения представляется более предпочтительным, поскольку защелкивающийся замок позволяет более точно и быстро зафиксировать направляющие, что облегчает монтаж потолочных конструкций.

Благодаря новым разработкам данного типа соединения, при возникшей необходимости демонтаж подвесной системы также упрощается, поскольку не требует использования дополнительного инструмента.

На каркас крепятся или укладываются облицовочные блоки: это могут быть как готовые модульные элементы - плиты, панели, - так и гипсокартонные листы, формирующие плоскость потолка.

Законченный вид установленному подвесному потолку придают молдинги - пристенные уголки, форма которых может быть достаточно сложной (ступенчатой), в зависимости от потолочной конструкции. Молдинги устанавливают по периметру помещения, закрепляя на уровне потолка. Стандартный цвет подвесных систем - белый, однако они могут быть цветными или иметь отделку, имитирующую какой-либо металл (хром, золото и т.д.).

Существует несколько конструктивных разновидностей подвесных несущих систем: видимая, полускрытая и скрытая. Тип системы определяется в зависимости от визуального эффекта, возникающего после укладки панелей на подвесную систему.

Дело в том, что декоративные облицовочные элементы подвесного потолка могут состыковываться друг с другом очень плотно, скрывая каркас (такой каркас действительно называют скрытым) или крепиться на нем с небольшими промежутками (открытый каркас). В зависимости от работ, которые потребуются для замены модуля (без какой-либо разборки каркаса или при его частичном демонтаже, декоративные элементы подвесного потолка разделяются на съемные и несъемные.

На кромках модулей могут иметься ступеньки или пазы для крепежа к профилю каркаса.

Тип системы предопределяет и тип кромок панелей, которые необходимо использовать.

Наиболее просты в монтаже видимая и полускрытая системы. Видимая подвесная система может иметь разную ширину. Стандартные величины - 24 мм и 15 мм.

Скрытая подвесная система может оборудоваться как съемными, так и несъемными панелями. В первом случае любой модуль системы снимается легко, без какого-либо демонтажа конструкции, во втором - модуль можно снять лишь после частичной разборки самой системы.

Существуют и другие варианты - так называемые дизайнерские системы, системы увеличенной ширины, большепролетные системы, системы повышенной жесткости. Их отличие в размерах и конструктивных особенностях. Можно выделить два типа подвесных систем: соответствующие европейскому или американскому стандартам.

По европейскому стандарту ячейки подвесной системы имеют размеры 600 х 600 мм (для потолочных модулей размером 595 х 595 мм, по американскому - размер ячейки составляет 610 х 610 мм, соответственно для плит 605 х 605 мм.


© 2012 Рефераты, доклады и дипломные работы, курсовые работы бесплатно.