рефераты
Главная

Рефераты по международному публичному праву

Рефераты по международному частному праву

Рефераты по международным отношениям

Рефераты по культуре и искусству

Рефераты по менеджменту

Рефераты по металлургии

Рефераты по муниципальному праву

Рефераты по налогообложению

Рефераты по оккультизму и уфологии

Рефераты по педагогике

Рефераты по политологии

Рефераты по праву

Биографии

Рефераты по предпринимательству

Рефераты по психологии

Рефераты по радиоэлектронике

Рефераты по риторике

Рефераты по социологии

Рефераты по статистике

Рефераты по страхованию

Рефераты по строительству

Рефераты по таможенной системе

Сочинения по литературе и русскому языку

Рефераты по теории государства и права

Рефераты по теории организации

Рефераты по теплотехнике

Рефераты по технологии

Рефераты по товароведению

Рефераты по транспорту

Рефераты по трудовому праву

Рефераты по туризму

Рефераты по уголовному праву и процессу

Рефераты по управлению

Контрольная работа: Особенности проектирования строительных конструкций гражданских зданий

Контрольная работа: Особенности проектирования строительных конструкций гражданских зданий

Контрольная работа

по дисциплине:

«Особенности проектирования строительных конструкций гражданских зданий»


Содержание

1.  Работа под нагрузкой обрешётки настила подшивки. Конструирование и расчёт.

2.  Нагрузки, действующие на здание. Понятие о работе конструкции зданий из дерева под нагрузкой.

3.  Понятие о работе под нагрузкой несущих стеновых панелей панельных зданий.

Список литературы


1.  Работа под нагрузкой обрешётки настила подшивки. Конструктирование и расчёт

Расчёт шага обрешётки и длины кровли из цементно-песчаной черепицы

Для определения количества рядов черепицы на проектируемой кровле вначале рассчитывают шаг (Шо6р.) обрешётки (рис.1. ): Шобр.= Lчер. - Н, где Lчep. (длины черепицы "Франкфуртская NOVO") = 420 мм; Н (нахлёстка черепиц) = 75…108 мм в зависимости от уклона.

Описание: http://www.complexdoc.ru/documents/46324/46324.files/image068.gif

Рис. 1. Поперечный разрез черепичной кровли

Зная длину стропила Lстр. можно определить количество рядов черепицы (n):

Описание: http://www.complexdoc.ru/documents/46324/46324.files/image070.gif где

Шкарн. (шаг стропил у карниза) = 32…39 см (см. рис. 1.15) в зависимости от положения водосточного желоба;

4 см - расстояние от конька до верхней грани обрешётки.

На многоскатных кровлях шаг обрешётки и количество рядов черепицы рассчитывают для каждого ската.

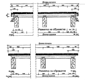
Длина кровли (длина обрешётки) зависит от длины здания и применяемой боковой черепицы (рис. 2). Точная подгонка длины кровли обеспечивается применением половинчатой черепицы и свободной укладкой черепицы (с люфтом 3 мм в каждом стыке черепицы).

Описание: http://www.complexdoc.ru/documents/46324/46324.files/image072.gif

Рис. 2 Схема для расчёта длины кровли с боковой цементно-песчаной (а) и облегчённой (б) черепицей

1 - боковая левая черепица; 2 - половинчатая черепица; 3 - цельная рядовая черепица; 4 - боковая правая черепица; 5 - шуруп с уплотнительной шайбой.

 

Расчёт шага обрешётки (длины ската) и длины кровли из керамической черепицы (на примере черепицы "ОПАЛ")

Размеры этой черепицы, расчёт длины ската и кровли приведены на рис.3,4,5


Описание: http://www.complexdoc.ru/documents/46324/46324.files/image074.jpg

Рис 3 План черепицы, поперечный и продольный разрезы.

Рекомендуемый уклон кровли - 30°.

Вес черепицы - 1,8 кг.

Расход на 1 м2 ~ 34 шт.

Средняя длина черепицы в кровле ~ 360 мм;

Средняя ширина черепицы в кровле ~ 180 мм

Шаг обрешётки: при двойной укладке - 145…165 мм (см. рис.4) и при корончатой укладке - 290…330 мм (см. рис.5).

Описание: http://www.complexdoc.ru/documents/46324/46324.files/image076.gif

Рис.4. Поперечный разрез кровли (скат кровли) при двойной (а) и при корончатой (б) укладке черепицы.

LAP - расстояние от конька до обрешётки равно 100 мм при уклоне кровли до 30°; 90...100 мм от 30 до 45° и 75…90 мм - > 45°;

LA - шаг обрешётки;

LAT1 и LAT2 - шаг обрешётки на свесе.

Длина ската будет равна: L = LAT1 + LAT2 + LAF + LA x n, где n - количество рядов черепицы.

Описание: http://www.complexdoc.ru/documents/46324/46324.files/image078.gif

Рис.5 Продольный разрез кровли с применением на фронтоне боковой черепицы (а) и без применения такой черепицы (б).

здание настил конструкция кровля

2.  Нагрузки, действующие на здание. Понятие о работе конструкции зданий из дерева под нагрузкой

На здания действуют статические постоянные и кратковременные нагрузки.

Самыми распространенными видами нагрузок и источниками напряжений являются:

·  давление и тяга ветра;

·  собственный вес и прочие постоянные нагрузки;

·  эксцентриситет постоянных нагрузок;

·  горизонтальные силы, вызванные человеком, животными или транспортом;

·  вес оборудования, монтируемого на бетонных слоях;

·  колебания средней температуры железобетонных слоев;

·  разница внутренней температуры слоев;

·  разница температуры между слоями;

·  усадка и ползучесть слоев;

·  осадка фундамента;

·  нагрузки, возникающие во время перевозки и монтажа.

Давление и тяга ветра сосредотачиваются на наружном слое, с которого напряжение через связи переходит на внутренний слой и далее через стык на остальную часть конструкции. Собственный вес наружного слоя через связи и закладные переходит на внутренний слой. Нагрузки, вызываемые человеком, животными, транспортом и предметами учитываются как линейные или отдельные сосредоточенные нагрузки. Вес оборудования, закрепляемого на панели, учитывается как постоянная нагрузка. Особо значительным может оказаться вес рекламного оборудования.

Следствием колебаний средней температуры слоев является изменение длины стены, а следствием разницы температур - изгибы. Если вышеупомянутые подвижки панелей не могут происходить свободно, в стене образуются вынужденные силы, которые могут привести к образованию трещин, прогибов и других повреждений.

Показатели деформации, возникающие в период складирования, во многом зависят от способа опирания панели. Крайними случаями являются свободное опирание и полностью закрепленное опирание.

Обычно бетонные панели складируются в вертикальном положении, с опиранием на нижний край и на один из верхних углов. Если панель находится не в вертикальном положении, то на длинных (более 6м) и только что отформованных панелях могут появиться прогибы.

Материал наружного и внутреннего слоев

Для полносборных железобетонных конструкций применяют все основные виды бетона: тяжелый, легкий на пористых заполнителях и ячеистый. Марка бетона выбирается на основании требований по долговечности и прочности.

Сбор нагрузок с кровли

№ п/п Наименование нагрузки

Норма нагрузка

кгс/м2

Коэф.

надежности по нагрузке

Расчет. нагрузка

кгс/м2

Постоянная
1

Кровельное покрытие

8 1,1 8,8
2

Цементно-песчанная стяжка(2000=7 кгс/м3, 8=20 мм)

40 1,3 52
3

Утеплитель (пенополистирол)- (1600=Г кгс/м3, 8=160 мм)

256 1,3 332,8
4

Пароизоляция-5мм

5 1,1 5,5
5

Железобетонная плита (2400=f кгс/м3, 8=200 мм)

480 1,1 528
ИТОГО постоянная: 789 927,1
6 Снеговая нагрузка 180 1,4 252

Сбор нагрузок на чердачное перекрытие

№ п/п Наименование нагрузки

Нормах.

нагрузка

кгс/м2

Коэф. надежности по

нагрузке

Расчет.

нагрузка

кгс/м2

Постоянная
1

Железобетонная плита

(2400=f кгс/м3, 8=200 мм)

480 1,1 528
ИТОГО постоянная: 480 528
2 Полезная равномерно распределённая нагрузка (пункт 2, табл.3, СНиП 2.01.07-85) 70 1,3 91
ИТОГО: 550 619

Сбор нагрузок на междуэтажное перекрытие

№ п/п Наименование нагрузки

Нормат.

нагрузка

кгс/м2

Коэф. надежности по нагрузке

Расчет, нагрузка

кгс/м2

Постоянная
1 Керамическая плитка (γ=1800 кгс/м3,δ=10мм) 18 1,1 19,8
2 Цементно-песчаная стяжка (2000 кгс/м3, δ =40 мм) 40 1,3 52
3 Железобетонная плита (2500=Г кгс/м3, δ =200 мм) 500 1,1 550
ИТОГО постоянная: 558 621,8
Расчётная временная
4 Полезная равномерно распределённая нагрузка (пункт 2, табл.3, СНиП 2.01.07-85) 150 1,3 195
ИТОГО: 708 816,8

К=1687,8кгс/м2*1м*16,65м=28101,87кгс=28ДЗтс

Определяем значения расчетных усилий по обрезу фундаментов в наиболее неблагоприятном сочетании нагрузок.

Для расчетов по деформациям (с коэффициентом надежности по нагрузке Yf-1) :

Nedr=Na*Yf=Nn* 1=28,1* 1=28 ДЗтс

Для расчетов по несущей способности (с коэффициентом надежности по нагрузке Yf=l,2):

Ncoi,=Nn*Yf=Nn* 1=28,1* 1,2=33,72тс

Для изготовления деревянных конструкций следует применять древесину преимущественно хвойных пород. Древесину твердых лиственных пород следует использовать для нагелей, подушек и других ответственных деталей.

Древесина для несущих элементов деревянных конструкций должна удовлетворять требованиям 1, 2 и 3-го сорта по ГОСТ 8486-66*, ГОСТ 2695-71*, ГОСТ 9462-71*, ГОСТ 9463-72*, а также дополнительным требованиям. Прочность древесины должна быть не ниже нормативных сопротивлений. Древесина нагелей, вкладышей и других деталей должна быть прямослойной, без сучков и других пороков, влажность древесины не должна превышать 12 %. Такие детали из древесины малостойких в отношении загнивания пород (береза, бук) должны подвергаться антисептированию. Величину сбега круглых лесоматериалов при расчете элементов конструкций следует принимать равной 0,8 см на 1 м длины, а для лиственницы - 1 см на 1 м длины. Деформации деревянных конструкций или их отдельных элементов следует определять с учетом сдвига и податливости соединений. Действующее на соединение (связь) усилие не должно превышать расчетной несущей способности соединения. При расчете конструкций клеевые соединения следует рассматривать как неподатливые соединения. При проектировании деревянных конструкций следует:

а) учитывать производственные возможности предприятий-изготовителей деревянных конструкций;

б) учитывать возможности транспортных средств;

в) использовать древесину с наименьшими отходами и потерями;

г) предусматривать меры по обеспечению устойчивости и неизменяемости отдельных конструкций и всего здания или сооружения в целом в процессе монтажа и эксплуатации.

 Напряжения и деформации в деревянных конструкциях от изменения температуры древесины, а также от усушки или разбухания древесины вдоль волокон учитывать не следует.

При пролетах деревянных безраспорных конструкций более 30 м одна из опор должна быть подвижной.

3.  Понятие о работе под нагрузкой несущих стеновых панелей панельных зданий

Несущие стены панельных зданий состоят из панелей высотой в этаж. В отличие от крупных блоков стеновые панели не самоустойчивы: при возведении их устойчивость обеспечивают монтажные приспособления, при эксплуатации - специальные конструкции стыков и связей. Перекрытия выполняются из железобетонных настилов или панелей размером на конструктивно-планировочную ячейку ("панель на комнату").

Большинство конструкций при данной технологии возведения зданий выполняет сразу несколько функций: наружные стены - несущие и теплозащитные, внутренние - несущие и звукоизоляционные функции. Данную технологию отличает высокая пространственная жесткость, которая обеспечивает сейсмостойкость сооружений при землетрясениях.

Стеновые панели сегодня - это исключительно многослойные конструкции, созданные на основе эффективных теплоизоляционных материалов.

В настоящее время, как уже говорилось выше, должны выпускаться только наружные стеновые панели, соответствующие требованиям второго этапа теплосбережения по СНиП II-3-79*. Этим требованиям соответствуют трехслойные панели с эффективным утеплителем. Трехслойная панель - это слоистая панель, имеющая наружный и внутренний железобетонные слои и теплоизоляционный слой, расположенный между ними.

Железобетон - композиционный строительный материал, в котором соединены в единое целое бетон и стальная арматура. Основным недостатком бетона является его низкая прочность на растяжение. Поэтому арматуру (стальные стержни) располагают в бетоне так, чтобы растягивающие усилия воспринимались арматурой, а сжимающие усилия передавались на бетон. Совместная работа бетона и арматуры обеспечивается хорошим сцеплением между ними и близостью коэффициентов линейного расширения.

Железобетонные панели могут быть как полносборными конструкциями (соединение слоев происходит в процессе изготовления на заводе, а монтаж панели на стройплощадке производится как готового стенового элемента), так и сборными - монтаж осуществляется установкой каждого слоя отдельно.

Особенностями конструкций трехслойных железобетонных панелей заводского изготовления являются:

·  экономичность с точки зрения скорости возведения здания, затрат на монтаж;

·  меньшая зависимость строительных работ от погодных условий при соблюдении принципа непроникновения влаги в изоляционные конструкции;

жесткая теплоизоляция, воспринимающая силы растяжения и среза, перераспределяет нагрузки между бетонными слоями, вследствие чего значительно возрастает несущая способность панели.

Необходимо также отметить еще одну особенность современных железобетонных панелей, касающуюся технологии производства. Это современные опалубки (мобильно изменяемые), позволяющие изготавливать панели необходимых размеров и конфигураций под каждый конкретный проект. Благодаря этому архитектор, используя индустриальные панели, может создавать запоминающийся уникальный образ каждого здания.

На многослойные наружные панели в процессе эксплуатации действуют статические постоянные и кратковременные нагрузки. Панели также подвергаются перепадам температур и влиянию влажности. Во время перевозки и подъема панелей могут возникнуть и динамические напряжения.

Самыми распространенными видами нагрузок и источниками напряжений являются:

·  давление и тяга ветра;

·  собственный вес и прочие постоянные нагрузки;

·  эксцентриситет постоянных нагрузок;

·  горизонтальные силы, вызванные человеком, животными или транспортом;

·  вес оборудования, монтируемого на бетонных слоях;

·  колебания средней температуры железобетонных слоев;

·  разница внутренней температуры слоев;

·  разница температуры между слоями;

·  усадка и ползучесть слоев;

·  осадка фундамента;

·  нагрузки, возникающие во время перевозки и монтажа.

Давление и тяга ветра сосредотачиваются на наружном слое, с которого напряжение через связи переходит на внутренний слой и далее через стык на остальную часть конструкции.

Собственный вес наружного слоя через связи и закладные переходит на внутренний слой. Нагрузки, вызываемые человеком, животными, транспортом и предметами учитываются как линейные или отдельные сосредоточенные нагрузки. Вес оборудования, закрепляемого на панели, учитывается как постоянная нагрузка. Особо значительным может оказаться вес рекламного оборудования.

Следствием колебаний средней температуры слоев является изменение длины стены, а следствием разницы температур - изгибы. Если вышеупомянутые подвижки панелей не могут происходить свободно, в стене образуются вынужденные силы, которые могут привести к образованию трещин, прогибов и других повреждений.

Показатели деформации, возникающие в период складирования, во многом зависят от способа опирания панели. Крайними случаями являются свободное опирание и полностью закрепленное опирание.

Обычно бетонные панели складируются в вертикальном положении, с опиранием на нижний край и на один из верхних углов. Если панель находится не в вертикальном положении, то на длинных (более 6м) и только что отформованных панелях могут появиться прогибы.

Для полносборных железобетонных конструкций применяют все основные виды бетона: тяжелый, легкий на пористых заполнителях и ячеистый. Марка бетона выбирается на основании требований по долговечности и прочности.


4. 

Список литературы

1. Гринь И.М. Строительные конструкции из дерева и пластмасс. Киев, ВШ, 2009г.

2. Попов Н.Н. Железобетонные и каменные конструкции. М., ВШ., 2007 г.

3. Байков В.Н. Железобетонные конструкции, М., Стройиздат,2008 г.

4. СНиП 2.01.07-2010. Нагрузки и воздействия.

5. СНИП 11-25-2006. Деревянные конструкции.

6. СНиП 2.03.01-2006. Бетонные и железобетонные конструкции.

7. ГОСТ 21.101-2009. СПДС. Основные требования к рабочей документации.


© 2012 Рефераты, доклады и дипломные работы, курсовые работы бесплатно.